Sviller
Publisert: 22. september 2011
Oppdatert: 9. juli 2025
1 Innledning

Mellom skinnene og ballasten er det en komponent med grunnleggende betydning i sporet, nemlig svillen. Svillens oppgave i overbygningen er å:
- ta opp kreftene fra trafikken ved framføring av det rullende materiell
- fordele disse kreftene videre ned i ballasten uten at svillen tar skade
- sammen med befestigelsen å holde sporvidden ved like
- sammen med ballasten å sørge for en størst mulig stabilitet i sporet sideveis for å hindre utknekking.
Svillen må:
- tåle kontaktspenningene fra skinnene (ev. underlagsplatene)
- tåle bøyespenningene fra momentbelastningene som oppstår pga. trafikken
- ha bæreflater som er store nok til at ballasten ikke brytes ned som følge av store spenninger
- være laget av et materiale som holder befestigelsen på plass for å sikre sporvidden
- ha en form som gir størst mulig motstand mot utknekking av sporet
- være håndterbare enten ved hjelp av maskiner eller håndkraft.
I tillegg skal den også være så billig som mulig og ha en lengst mulig levetid.
Det er ingen enkel oppgave å konstruere en sville som på best mulig måte skal oppfylle ovennevnte krav og å velge rett materiale. Mange faktorer og parametre kommer i betraktning. Det er utviklet metoder mht. fastsettelse av størrelsen på de ytre krefter og dimensjonering av svillen. Noen metoder er bygget opp på empirisk grunnlag. Andre metoder tar utgangspunkt i anerkjente teorier.
I dette kapitlet skal det gis et overblikk over:
- svilletyper og materialer til bruk i sville
- dimensjonering
- produksjon
- fordeler og ulemper ved svilletypene
- økonomi og vedlikehold
2 Svilletyper og svillematerialer
Sviller kan lages i mange materialer og i flere utførelser, eller de kan enten sløyfes helt eller utformes i samvirke med andre komponenter ved sammenbundet forbindelse (ballastfritt spor).
Tradisjonelt har svillene blitt framstilt av treslag i lokale skogsområder. I Norden er det blitt benyttet furu eller bøk. På kontinentet kom også stålsviller tidlig inn i bildet. Betongsvillen er i hovedsak en etterkrigsutvikling og har nå hos de fleste baner overtatt tresvillens rolle som den vanligste svillen ved sporombygging og ved legging av nytt spor.
Sporets sideforskyvningsmotstand influeres sterkt av svilletypen og materialet den er laget av.
2.1 Svillenes egenskaper
2.1.1 Tresviller
Tresvillene har fordeler mht. håndterbarhet, elastisitet, liten følsomhet overfor impulslaster og mindre krav til ballastkvalitet.
Tresviller har elastiske egenskaper og reagerer derfor på ujevnheter i sporet på en slik måte at svillenes kapasiteter mht. moment og skjær ikke overskrides. Tresvillene er også i stand til å motstå impulslaster på en slik måte at de ikke knekker så lett.
Den største ulempen er levetiden. Dette gjelder spesielt furusviller. Levetiden begrenses av at tre utsettes for råte og i skarpe kurver av de store mekaniske påkjenninger som oppstår pga. sidekrefter. Disse fører igjen til utvidelser av sporvidden og problemer med løs befestigelse. For furusviller i nordisk klima kan levetiden være så kort som 25 år. Når det gjelder hardtresviller av bøk eller eik kan det regnes med en levetid på over 40 år under ytre forhold med kjølig klima. Ved riktig rehabilitering kan levetiden bli opp til 50 år på mindre trafikkerte baner [13]. Dette er det samme som den antatte levetiden for betongsviller.
Noen tropiske regnskogstreslag (azobe, carry, jarrah, osv.) har spesielt gode egenskaper som svillemateriale. Av hensyn til det globale miljøvernet har det ved enkelte forvaltninger blitt tatt en prinsippbeslutning om ikke å benytte disse treslagene.
Pga. miljøhensyn ble bruk av nye kreosotimpregnerte tresviller forbudt i Norge fra 2018.
2.1.2 Betongsviller
Overgangen til bruk av betongsviller har flere årsaker. Det er allerede nevnt problemene med tresvillenes (spesielt furu) korte levetid. Videre har prisene på tresviller etter hvert økt så mye at betongsvillene ofte er det rimeligste alternativet. Dette gjelder spesielt dersom det må anskaffes nye underlagsplater og befestigelse til tresvillene i forbindelse med rehabilitering. Med betongsviller blir det oppnådd en sikker sporvidde, et mer stabilt spor og lang levetid.
Betongsvillene setter store krav til elastisiteten i ballasten da disse svillene er helt stive (ingen elastisitet). Videre er de følsomme overfor impulslaster. Betongsvillene er også meget følsomme mht. å bli opplagret under midten siden de ikke dimensjoneres for dette lasttilfellet. Det kreves av disse årsaker et tykt elastisk ballastlag (min. 30 cm er vanlig) og ren ballast uten innslag av store steiner.
Et annet forhold er avsporinger. Mens tresviller vanligvis vil tåle dette, blir betongsvillene slått i stykker og skadeomfanget kan bli meget stort. Det er ikke alltid at avsporinger oppdages før toget har kjørt flere kilometer og dermed kan tusenvis av sviller bli skadet.


Det er to hovedtyper betongsviller, nemlig monoblokk- og toblokksviller. Alle monoblokksviller har spennarmering. Det er 2 metoder for etablering av forspenningen. Den ene metoden går ut på at svillene støpes i langbenker med oppspente armeringstråder som kuttes når svillen er herdet. Ved den andre metoden stikkes armeringsjern inn i svillen etter at betongen er herdet. Armeringsjernene spennes deretter opp (kalles også etterspente sviller). Toblokksviller består av to slakkarmerte betongklosser bundet sammen med en stålstang.
Hvilken av de to som er den beste svilletypen er åpent for diskusjon, men trenden internasjonalt går mot monoblokksviller. I Østerrike er det utviklet noen spesielle varianter av betongsviller, «Rammesville» og «HDS» sville. Rammesvillen er støpt som en ramme noe som medfører et svært stabilt spor. Spor med rammesviller kan imidlertid ikke justeres med «vanlige» sporjusteringsmaskiner.
HDS svillen ligner mer på en normal monoblokksville, men denne har en bredere opplagsflate mot skinnen slik at det blir plass til doble sett med befestigelsesfjærer. I spor med denne type sviller kan man bruke «vanlige» sporjusteringsmaskiner.


2.1.3 Stålsviller


Stålsviller er ikke i bruk i Norden, bortsett fra en kort prøvestrekning i Finland. Disse svillene består vanligvis av en tykk stålplate formet som et trau med nedbøyde ender og sider. Fordelene er at ballast spares siden svillen er tynn og at de har en meget lang levetid. Ulempene er høy pris, problemer med elektrisk isolasjon og støy.


2.1.4 Komposittsviller

Som navnet antyder består komposittsviller av flere elementer. Noen av de mest vanlige materialer er resirkulert plast, gummi og bitumen med fyllstoffer (f.eks. sand, resirkulert glass, glassfiber). For å oppnå optimal mekanisk egenskap, blir svillen produsert med glassfiberforsterkning [20]. Fiberens retning bestemmer styrke og stivhet. De vanligste retningene til fiberarmering som brukes er tverrgående og langsgående av sporet. Derfor blir komposittsvillene klassifisert i tre kategorier:
- Ingen eller minimal fiberforsterkning, der styrken hovedsakelig kommer fra polymeren.
- Fiberforsterkning i tverrgående retning, noe som gir bedre stabilitet og styrke.
- Fiberforsterkning i både tverrgående og langsgående retning, som gir høyest mekanisk styrke, men også økte produksjonskostnader.

Forholdet mellom pris, styrke og fiberforsterkning for Kategori I, II og III komposittsviller.
Komposittsviller har vært tilgjengelig siden begynnelsen av 2000-tallet og har senere blitt montert i flere land som Russland, Australia, Sør-Afrika, USA, Thailand, Nederland, Japan og Storbritannia. I Norge ble komposittsviller for første gang tatt i bruk 2016 på Retelva bru ved Fidjetun stasjon på Sørlandsbanen og i 2018 ved Helsfyr T-banestasjon i sporveksler. Komposittsviller ble også lagt i tunneler på Ofotbanen for å redusere byggehøyde.
2.1.4.1 Lydisoleringsegenskaper til komposittsviller
Komposittsviller har vist seg å være en effektiv løsning for reduksjon av støy og vibrasjoner i jernbanespor. Deres unike materialegenskaper, som inkluderer høy elastisitet og vibrasjonsdempende kapasiteter, gjør dem til et foretrukket alternativ til tradisjonelle materialer som tre, betong og stål.
Studier har vist at bruk av gummikomposittsviller i ballasterte spor reduserer vibrasjonene i flere nivåer av sporkonstruksjonen. Målinger viser en reduksjon på 1,11 dB i svillene, 2,32 dB i ballastlaget og 1,69 dB i bakken. Dette betyr at komposittsvillene demper vibrasjoner ved kilden, reduserer overføring av vibrasjoner til ballastlaget, og begrenser videre spredning av vibrasjoner til bakken. Videre har tester på stålbruer vist at utskifting av tresviller med komposittsviller kan redusere støy med mellom 3–5 dB. Dette er spesielt viktig på bruer, hvor konstruksjonen kan forsterke støy og vibrasjoner.
Materialene som benyttes i komposittsviller, som resirkulerte plastflasker forsterket med glassfiber, har langt bedre akustiske egenskaper sammenlignet med betong og stål. Glassfiberforsterkede komposittsviller har også en høyere tetthet, som typisk ligger på 1153 kg/m³, avhengig av materialkombinasjonen. Den økte massetettheten bidrar til å dempe lydbølger og redusere strukturlyd i sporet, noe som gjør disse svillene spesielt egnet for støyutsatte områder som bybaner og bruer, der konstruksjonen ofte forsterker og resonerer lyden.
2.1.4.2 Elektrisk motstand i komposittsviller
Høy elektrisk motstand er en viktig egenskap ved komposittsviller, spesielt med tanke på jernbanens elektriske systemer og sikkerhet. Komposittsviller har generelt høy elektrisk motstand, noe som betyr at de fungerer som gode isolatorer sammenlignet med stål og betongsviller. Dette er særlig fordelaktig på elektrifiserte strekninger hvor det er viktig å unngå elektriske lekkasjer og kortslutninger i sporet.
For eksempel har noen typer glassfiberforsterkede komposittsviller en elektrisk impedans (motstand i våt tilstand) på 500×10⁶ ohm eller høyere, noe som er langt over tradisjonelle tresviller og betongsviller. Dette gir bedre isolasjon mot uønskede strømlekkasjer og kan bidra til å feil i signal- og deteksjonssystemer langs jernbanen.
En høy elektrisk motstand betyr også at komposittsviller er mindre følsomme for elektromagnetiske forstyrrelser fra jernbanens kraftsystemer, noe som kan være avgjørende for stabiliteten i elektroniske sikkerhetssystemer. Den høye elektriske resistiviteten til komposittmaterialet gjør det til et foretrukket valg i spor der presis elektrisk isolasjon er nødvendig, for eksempel ved høyhastighetsbaner eller jernbanebruer.
2.2 Svilletyper i Norden
Det er en del forskjeller mellom de nordiske landene mht. hvilke svilletyper det har vært satset på.
Tradisjonelt har de tre nordligste landene for det meste brukt sviller i furu, mens DSB har brukt bøk. Siden 1950-tallet er det gradvis blitt innført betongsviller. Ved JBV, BV og VR har dette stort sett vært monoblokksviller, mens DSB også har benyttet toblokksviller etter fransk modell. Nå bruker alle fire forvaltninger betongsviller av monoblokktypen. Alle er av forspent type og produseres i spennbenker.
Når det gjelder tresviller, har trenden vært at disse skulle erstattes med betongsviller. Dette gjelder spesielt på hovedlinjene. Imidlertid for mindre viktige baner (sidebaner) benyttes ennå tresviller i furu og bøk. I stasjonsområdene er det også en del mindre trafikkerte spor med eldre tresviller. Tabell 1 og figur 8 på neste side viser fordelingene mellom tre- og betongsviller og den historiske utviklingen ved de nordiske banene pr. 1995 [1].
Tabell 1: Fordeling mellom tre- og betongsviller ved de nordiske banene.
| Materiale | DSB | JBV | BV | VR |
|---|---|---|---|---|
| Furu, bjørk | 0 | 15,9 | 58,5 | 81,1 |
| Bøk, eik eller tropisk tre | 40,3 | 5,3 | 8,1 | 0,8 |
| Sum tre | 40,3 | 21,2 | 66,6 | 81,9 |
| Betong | 59,7 | 78,8 | 33,4 | 18,1 |

3 Dimensjonering/utforming av tresviller
Tresviller er i seg selv elastiske. De reagerer derfor på belastninger og ujevnheter i sporet på en slik måte at svillenes momentkapasitet i forbindelse med bruddstyrke og skjærkapasitet ikke blir overskredet. Betydelige erfaringer helt siden jernbane ble introdusert, bekrefter dette. Motstand mot slitasje fra underlagsplater i befestigelsen spesielt i kurver samt råte har sammenheng med lokalt opptredende belastninger og fysikalske forhold. Disse fenomener har imidlertid ingen betydning for kapasitet mht. moment og skjær.
4 Dimensjonering/utforming av betongsviller
Betongsvillene er i seg selv helt stive og evner ikke å reagere elastisk på belastninger og ujevnheter i sporet. Det kan bl.a. oppstå sprekker på grunn av overbelastning eller svillen kan bli utmattet. Disse forhold er viktige momenter mht. dimensjonering av svillen. Det er derfor nødvendig å definere de laster svillen utsettes for og hvilke dimensjonerende momenter dette fører til. Selve dimensjoneringen av betongsvillene er deretter en forholdsvis enkel sak da anerkjent teori kan benyttes. Utformingen av svillen er også viktig for å unngå for høye ballastspenninger og for å gi en best mulig motstand mot sideforskyvning av sporet.
I det etterfølgende behandles derfor metoder og kriterier for dimensjonering av betongsvillen.
4.1 Opptredende laster
Lasten som svillen utsettes for, er belastningen fra trafikken overført gjennom skinnene. Motkraft er ballastens trykk mot undersiden av svillen.
De vertikale krefter deles opp i statiske, kvasistatiske og dynamiske belastninger. Statisk last er aksellasten eller hjullasten. Kvasistatisk last er omlagring av hjullast på grunn av sentrifugalkraften som opptrer ved gjennomkjøring i kurver. De dynamiske lastene opptrer ved framføring av det rullende materiell og er meget kompliserte i sin natur.
4.1.1 Statisk last
Statisk last er aksellast eller hjullast når det rullende materiell står i ro. Statisk last for en bestemt type materiell er konstant under forutsetning av at vognens maksimale nyttelast nyttes. Lasten er uavhengig av framføringshastigheten.
4.1.2 Kvasistatisk last
Kvasistatisk betyr nesten i ro, dvs. opptredende last ved liten hastighet. Kvasistatisk last tar også hensyn til omlagring av hjullastene på grunn av opptredende sentrifugalkrefter ved gjennomkjøring i kurver for det rullende materiell. Kvasistatisk last blir dermed hastighetsavhengig.
4.1.3 Dynamiske belastninger
Dynamiske påkjenninger på svillene kan deles opp i impulslaster og laster forårsaket av vibrasjoner. Eksempler på førstnevnte er hjulslag eller feil på skinneoverflaten som f.eks. sluresår. Sistnevnte kan f.eks. skyldes rifledannelse på skinner eller hjul. Virkningen av de dynamiske belastningene forsterkes ytterligere der sporet er lite elastisk, f.eks. som følge av tynt ballastlag på hard undergrunn, eller ved plutselige forandringer i sporets elastisitet. Dette er f.eks. tilfelle ved overgang fra underbygning bestående av jordlag til fjellskjæring. I disse tilfellene kan belastningene bli så høye at betongsvillene slås i stykker.
Impulslaster gir lokal påvirkning og forårsaker høye, men kortvarige spenninger (høy E-modul). Betongsviller er meget følsomme overfor slike slagbelastninger. De kan dempes ved å benytte gode elastiske mellomlegg.

Det forekommer vibrasjoner med svært høye frekvenser i sporet. Frekvensene kan bli over 1000 Hz. Hvis sporets frekvenser sammenfaller med svillens egensvingningsfrekvenser, vil resonansfenomener og store deformasjoner og spenninger oppstå uten at den angripende lasten behøver å være stor. En passende geometrisk utforming av svillen kan motvirke resonans og en bedre kombinasjon av elastisitets- og dempningsforhold i systemet mellomlegg–sville–ballast kan redusere faren for resonans.
Det kan nevnes at målinger som Pandrol har gjort i sporet, har vist spesielt skadelige forhold i frekvensområdet 110 Hz til 700 Hz. I dette området beveget skinnen og svillen seg i motfase med slag mellom skinne og sville og dermed oppstod store belastninger på svillen som resultat.
4.1.4 Generelt om beregningsmetoder
Da betongsvillene ble introdusert på 1950-tallet, ble det gjort enkle antagelser for hvilke laster betongsvillene måtte dimensjoneres for. Et visst dynamisk tillegg til den statiske aksellasten ble fastsatt uten særlig begrunnelse. Dimensjonerende last på betongsvillene ble så beregnet. Det ble forutsatt at svillen er jevnt opplagret over en viss lengde og at mottrykket fra ballasten er konstant over denne lengden. Generelt kunne dette f.eks. bli utført på følgende måte:
Tabell 2: Dimensjonering av betongsville
| Hjullast = | Aksellast 200 kN/2 | 100 kN |
| + Tillegg dynamiske påkjenninger 200 % | + 200 kN | |
| = skinnelast | = 300 kN | |
| Fordeles på 2 sviller | 300 kN/2 | = 150 kN |
Det dynamiske tillegget representerer et sammentreff av en rekke ugunstige omstendigheter som ikke nødvendigvis vil inntreffe på samme tid. På den andre side er det heller ikke sikkert at det har blitt tatt tilstrekkelig godt i ved fastsettelse av dimensjonerende last. Det kan ikke ansees tilfredsstillende å gjøre dynamiske tillegg på denne måten og bedre metoder har derfor blitt utviklet.
Et annet og kanskje vel så stort problem er ballasttrykkets fordeling på undersiden av svillen. Dette trykket kan variere iht. ballastens tilstand. Det er av den grunn nødvendig at dekningskurven ved dimensjonering av momentkapasiteten til svillen omfatter flere belastningstilfeller.
Dimensjonering av ytre last fra skinnene kan f.eks. gjøres ved hjelp av Zimmermanns teori og Eisenmanns tilleggsfaktorer for dynamiske laster. Deretter beregnes de dimensjonerende momenter.
En annen mulighet er å bruke beregningsmetoden fra ORE-utvalget D71, rapport nr. 9 [11], som er bygget opp på empirisk grunnlag. Det ble her gjort en lang rekke laboratorieforsøk og forsøk i sporet som resulterte i formler for beregning av de dimensjonerende momentene under skinnene og i midten av svillen. Metoden er enkel i bruk og gir brukbare resultater. Det henvises til rapporten for nærmere informasjon.
For å vise hvordan den vertikale dimensjonerende svillebelastning kan beregnes, benyttes Zimmermanns metode med tillegg for innvirkning av dynamiske krefter iht. Eisenmann. De horisontale krefter betraktes også.
Gjennomgangen er bl.a. basert på en rapport fra 1986 forfattet av Birgit Parzefall ved Technische Universität München [12]. Denne rapporten inneholder en kritisk gjennomgang av dimensjoneringen av Deutsche Bundesbahns betongsviller. Heftet gir en meget god oversikt over prinsippene som benyttes for å dimensjonere en betongsville.
4.2 Grunnleggende teori
Beregningsmetoden for fastsettelse av de totale krefter settes sammen av:
- Zimmermanns metode
- Eisenmanns metode
Zimmermann utviklet en metode for beregning av de ytre kvasistatiske belastninger forårsaket av det rullende materiell når det står nesten stille i sporet. Omlagring av hjullastene på grunn av sentrifugalkraften som dog er hastighetsavhengig, inngår i begrepet kvasistatisk belastning. Sporet betraktes som en kontinuerlig bjelke som hviler på et elastisk underlag.
Eisenmann bygget på metoden til Zimmermann og utviklet en metode for beregning av de dynamiske belastninger på grunn av framføring av det rullende materiell.
De kvasistatiske og dynamiske belastningene adderes og summen gir den totale belastning. Denne belastningen er grunnlaget for beregning av den såkalte støttepunktkraften S som betongsvillen må dimensjoneres for. Støttepunktkraftens angrepspunkt er i skinneleiene.
Utgangspunktet er som nevnt at sporet betraktes som en kontinuerlig bjelke som hviler på et elastisk underlag med gitt stivhet. Avhengig av elastisitetsforholdene i sporet vil hjulkreftene fordele seg over flere sviller. Betongsvillene plasseres på tvers i sporets lengderetning og svillene med skinner danner således et tverrsvillespor. I utviklingen av beregningsmetoden forutsetter Zimmermann at dette tverrsvillesporet gjøres om til et langsvillespor.
Oppgaven består i å beregne støttepunktkraften S som betongsvillen må dimensjoneres for. Utgangspunktet er bøyelinjen og momentforløpet til sporet (eller skinnene) opplagret på et elastisk underlag.
Forutsetningene i den matematiske modell er:
- Sporet betraktes som en uendelig lang bjelke som er opplagret på et homogent og jevnt elastisk underlag.
- Den uendelige lange bjelke er vektløs.
- Den uendelige lange bjelke er fast forbundet med det elastiske underlaget.
Det kreves 2 betingelser som settes lik hverandre (likevektsbetingelse):
- Deformasjon av det elastiske underlaget ved belastning av enkeltlast.
- Nedbøyning av den uendelige lange bjelke som hviler på det elastiske underlaget.

Det kan utledes at støttepunktkraften S som betongsvillen dimensjoneres for, er:
(3.1)
- a = avstand mellom svillene [mm]
- b = bredde av tenkt lansville [mm]
- c = ballastsiffer [N/mm3]

For utledning av støttepunktkraften vises til L532, kap. 4, Dimensjoneringsmetoder
4.3 Beregning av betongsvillen
Den maksimale støttepunktkraften S er utgangspunktet for dimensjoneringen av svillen. De maksimale momentene som opptrer på grunn av ballastspenningene, beregnes og disse benyttes for dimensjoneringen av selve betongtverrsnittet.
4.3.1 Maksimale momenter

For beregning av svillen er det statiske systemet en uendelig stiv bjelke fritt opplagt på to støtter (skinnene) og med ballastspenningene med gitte fordelinger som last. De kritiske momentene blir det positive momentet under skinnene Msu og det negative momentet i midten av svillen Mmo. Selve beregningen av momenter i dette statiske systemet må forutsettes å være kjent fra annen utdannelse og vil ikke bli nærmere gjennomgått.

Momentet under skinnene Msu kan reduseres slik som vist i figur 13. Støttepunktkraften S antas å spre seg ned i svillene med en vinkel i forhold til horisontalen på 60°. I underkant av svillen vil den da være spredd over en lengde eu. Det negative moment beregnes til:
(3.2)
M motvirker det positive momentet fra ballastspenningene. Flere forsøk har vist at det er riktig å gjøre denne reduksjonen og tilsvarende reduksjon er også beskrevet i ORE-metoden for dimensjonering av betongsviller.
Momentforløpet i svillen og størrelsen på de maksimale momentene avgjøres helt og holdent av svillens opplagring i ballasten. Det er lite som er eksakt kjent vedrørende den egentlige fordelingen av ballasttrykket. Den er avhengig av en rekke faktorer, som f.eks. ballastens struktur, tilfeldigheter under pakking, hvor lenge det er siden siste pakking, osv. Det er derfor nødvendig å velge de mest sannsynlige ballastfordelingene.
De neste figurene viser eksempler på noen mulige fordelinger av ballasttrykket mot svillen og hvilke momentforløp disse fører til.

Lasttilfellene a til c i figur 14 tilsvarer det som normalt skjer i sporet mellom to oppakkinger. Rett etter pakking ligger svillen uten opplagring på midten. Etter hvert vil svillen sette seg og etter lang tid vil den ha et jevnt opplager i ballasten. Disse tre tilfellene benyttes ved dimensjoneringen. Betongsvillene må derfor gis en spennarmering som tilsvarer en momentdekningskurve. Denne momentdekningskurven må inneholde de største momentene fra de 3 lasttilfellene.
I tilfellene a til c blir betongsvillene også belastet med strekkspenninger, men ikke over grenseverdien på 3 N/mm2. Svillene oppnår de nødvendige 2 x 106 lastvekslinger uten brudd og spenningene er altså så lave at svillene ikke vil bli utmattet ifølge Wöhlers teorier.
Lasttilfellene d til f er mer sannsynlige tilfeller som tilsvarer a til c. Disse fører imidlertid ikke til høyere momenter.
Tilfellene i og j er kritiske. Svillen rir her på midten da forurenset ballast er frosset opp pga. telehiv eller fordi ballasten er forurenset av forholdsvis store steiner i undergrunnen. I begge disse tilfellene blir momentene store og strekkspenningene vokser ut over grensen på 3 N/mm2. Levetiden på svillene forkortes sterkt og sprekker oppstår.
Sviller dimensjoneres ikke for å kunne ri på midten. Det forutsettes at ballastkvaliteten er så god at det ikke er nødvendig. Normalt bør en altså kunne dimensjonere etter tilfellene a til c i fig. 14.
4.3.2 Faktorer i beregningen
Selve dimensjoneringen av betongtverrsnittene gjennomføres ikke her. For en jernbaneingeniør som arbeider med overbygning vil bestemmelsen av den dimensjonerende belastningen være det viktige. Selve beregningen av betongtverrsnittene ut fra det dimensjonerende momentdekningsdiagrammet kan trygt overlates til eksperter på det området.
Et par prinsipper må imidlertid nevnes:
Maksimale betongspenninger:
(3.3)
Det tillates altså at en viss utnyttelse av betongens strekkfasthet. Dette er et stridsspørsmål, siden betongen ikke har noen strekkfasthet i oppsprukket tilstand. Riktignok skal svillene dimensjoneres for rissfrihet, men f.eks. ved hjulslag kan rissmomentet overskrides og da kommer også rissene. Skulle enkelte riss dannes, vil disse holdes lukket av spennarmeringen bortsett fra i belastningsøyeblikket.
Rissbreddene må i alle fall holdes under en bredde på 0,6 mm på strekksiden i betongsvillens overflate. Vann vil ellers kunne trenge inn og føre til korrosjon av armeringen og også frostsprenging. Det vises også til avsnitt 8.5 hvor det beskrives et forsøksprogram i regi av Bane NOR og SINTEF. Kapasitetsmålinger mht. bøyemoment, rissmoment og utmatting ble utført for betongsviller med rissvidde opp til 1,0 mm. Disse svillene var utsatt for alkaliereaksjoner i begynnende stadium.
For øvrig målinger utført på sju dager gamle prøver viser ellers en bøyestrekkfasthet på 8–9 N/mm2. Over tid må det regnes med at denne faller til ca. halvparten [12], eller 4–4,5 N/mm2.
Mht. utmatting er det er viktig å ta denne med i betraktningen under dimensjoneringen. Betongsviller belastes ofte og hardt og må tåle et meget stort antall lastvekslinger i levetiden.
Betongens trykkfasthet har stor betydning for utmattingen. Beregninger fra [10] av betongens holdfasthet mot utmatting (antall lastvekslinger) viser at ved en forspenningskraft på 5 N/mm2 og maksimal trykkraft i betongen på 20 N/mm2 blir:
- Nc = 1014 for fc = 60 N/mm2
- Nc = 103 for fc = 50 N/mm2
der Nc = antall lastvekslinger før utmatting inntrer og fc = 28 dagers trykkfasthet for betongen. Over tid blir det tap av spennkraft. Det må regnes med ca. 30 % tap og dette må det tas hensyn til ved dimensjoneringen. Fordeling av tapet av spennkraften innenfor de 30 prosentene er:
- Elastisk tøyning i sville: 19 %
- Kryp i betong: 42 %
- Svinn i betong: 24 %
- Relaksjon (spennarmeringstap av heft til betong): 15 %
4.3.3 Dimensjoneringsprinsipp for spennarmert bjelke
Spennbetong er armert betong som ved spesielle tiltak har fått konstruktivt nyttbare trykkspenninger. Trykkspenningen framkalles i alminnelighet ved oppspenning av armeringen. Oppspenningen skjer normalt ved forhåndsspenning.
De spenningene som oppstår i betongkonstruksjonen ved gitte tiltak, kalles egenspenninger. Spenninger forårsaket ved egenlast og nyttelast kalles belastningsspenninger.
Fordelen med å etablere egenspenninger er at det under brukslast er mulig å oppnå bare trykkspenninger i betongkonstruksjonen. Forspenning gir derfor den fordel at det kan benyttes armeringsstål med langt høyere fasthet enn i vanlig slakkarmert betong. Det er nettopp rissfaren i slakkarmert betong som begrenser de nyttbare spenninger i stålet.
I figurene under er vist forskjellen på en slakkarmert konstruksjon som blir utsatt for riss og en spennarmert konstruksjon hvor riss hindres ved innføring av forspenningskraften.

I figur 16 er vist en bjelke med oppspent armering som er forankret i endene av bjelken. Det vil da i hele bjelken overføres en aksialkraft som er like stor som den spennkraften som er i armeringen. Denne kraften kan betegnes med S.
Videre angir figuren spenningsbildet under forutsetning av at armeringen er eksentrisk i forhold til bjelkens nøytrale akse ved gitt tverrsnitt.
Under forutsetning av eksentrisitet eS, blir det langs hele bjelken et konstant moment:
(3.4)
Dersom bjelken belastes med en ytre last, oppstår det et ytre moment som kan få betegnelsen MQ.
Det resulterende moment beregnes til:
(3.5)

Under antakelse av et tverrsnittsareal F for betongsvillen og motstandsmoment i overkant og underkant i bjelken WO og WU kan dimensjonerende spenninger beregnes.
Dersom det er mulig å holde både eksentrisiteten og det ytre moment innenfor visse grenser i forhold til spennkraften, er det mulig å sørge for at det ikke på noe sted i bjelken eller på noe tidspunkt oppstår strekkspenninger i konstruksjonen.
Iht. figuren på forrige side kan utledes spenningene i overkant og i underkant i betongkonstruksjonen, f.eks. midt i feltet.
I overkant:
(3.6)
Betingelse for trykkspenning er at:
(3.7)
I underkant:
(3.8)
Betingelse for trykkspenning er at:
(3.9)
Som nevnt tidligere påpekes at det tillates strekkspenninger i betongkonstruksjonen lik:
3,0 N/mm2
Spennarmeringen fordeles jevnt over betongtverrsnittets høyde i sideflatene med tilfredsstillende overdekning. Dette gjøres for å få plass til befestigelsen. Forholdet betyr at eksentrisiteten eS blir meget liten. Dette har naturligvis innvirkning på størrelsen på momentet S • eS/WU.
4.3.4 Eksempel mht. betongsville ved Bane NOR
Som eksempel skal nevnes de viktigste data for betongsvillen som Bane NOR anvender til 60E1 skinner. Svillen har en lengde på 2600 mm og største bredde lik 300 mm. I midtpartiet har svillen en minste bredde på 220 mm. Svillen har en vekt på ca. 270 kg.

Betongsvillen er dimensjonert for 3 ulike lasttilfeller. Dette er vist i figuren under.

Svillen skal dimensjoneres for 2 • 106 lastvekslinger mht. utmatting.
Mht. betongkvaliteten gjelder følgende:
- Trykkfasthet etter 28 døgn: min. 60 N/mm2
- Trykkfasthet ved spennkraftens innføring i betongen: min 30 N/mm2
- Bøyestrekkfasthet etter 28 døgn: min. 6 N/mm2
Som armering skal benyttes lavrelaksert 3-trådet spenntau i dimensjon 3x3,15 mm med følgende kvaliteter:
- Flytegrense (0,2): > 1700 N/mm2
- Bruddgrense: > 1900 N/mm2
Oppspenningskraften er 360 kN og fordeles likt på like mange spenntau (12 stk.) Det er da tatt hensyn til 30 % tap av spennkraft på grunn av elastisk tøyning, kryp, svinn og armeringens tap av heft til betongen.
Ovenstående medfører at betongsvillen er dimensjonert for en støttepunktkraft lik 150 kN.
4.4 Utforming av svillen
Svillens form har stor betydning for ballastspenningene og sporets sidemotstand.
4.4.1 Ballastspenninger og sporvedlikehold
Størrelsen på ballastspenningene har stor betydning for vedlikeholdet av sporet (pakke- og justeringsbehov). Størrelsen på svillens opplagerflater er dermed også viktig for dette forholdet, ikke bare for den styrkemessige dimensjoneringen av svillen. Foruten at setninger oppstår raskere ved høye ballastspenninger, er det også muligheter for nedknusing av ballasten og slitasje på betongsviller.
Ballastsifferet C (sporets stivhet eller elastisitet) innvirker på størrelsen på ballastspenningene:
(3.10)
Videre har aksellast og hastighet betydning.
Figur 19 og 20 viser innflytelsen svillestørrelsen og ballastsifferet har på de maksimale ballastspenningene [15].


Erfaringer og målinger tyder på at spenningsnivået helst ikke bør overstige 0,3 N/mm2 i ballasten. Over dette spenningsnivået blir setningskurvene vesentlig brattere enn ved lavere spenninger.

Resultater fra ORE D161.1 rapport nr. 4 forteller at nedbrytingen av sporets geometri i gjennomsnitt øker med endringen i spenningsbildet i ballasten opphøyd i 3. potens.
Med utgangspunkt i figur 19 er det mulig å gjøre en sammenligning mellom de to overbygningstypene med skinneprofil S54 (de to øverste linjene) med henholdsvis DBs sville B70 og NSBs standard betongsville (eldre svilletype). Spenningsnivået i ballasten ved 140 km/h øker fra ca. 0,3 N/mm2 med DB B70 til ca. 0,33 N/mm2 med NSBs betongsville. Dvs. en økning på ca. 10 %. Ut fra ovenstående vil det bety en økning i justeringsbehovet på 1,13 = 1,33 eller 33 %!
4.4.2 Sideforskyvningsmotstand
Svillens utforming og materiale sammen med vekten har stor innflytelse på sporets motstand mot sideforskyvning. Sideforskyvningsmotstanden påvirkes av friksjonen mellom ballast og sville, det passive trykket fra ballasten og sporets tyngde. Friksjonen ballast/sville gjelder i første rekke undersiden. Betongsvillenes underside utformes derfor med ru overflate.
Det passive trykket fra ballasten fører til at en sville med innsvingt midtparti og store endepartier vil ha en bedre motstand mot sideforskyvning enn en sville med rett midtparti og små endeflater. En toblokksville vil av samme grunn være bedre enn en monoblokksville siden den har dobbelt så mange endeflater og dermed større muligheter til å mobilisere ballastmotstanden (figur 22).
Sporets tyngde influerer pga. løftebølgen som går foran hver aksel. Denne løftebølgen blir mindre ved et tungt spor enn et lett. Det mobiliseres derved større friksjonskrefter mellom sville og ballast og motstanden mot sideforskyvning øker. Dette betyr igjen at betongsviller er gunstigere enn tresviller mht. sideforskyvning.
Det vises til L532, kap. 4 hvordan den negative støttepunktkraften ved en slik løftebølge beregnes.


4.5 Svillematter
Ved å lime på et elastisk lag under svillene vil den effektive kontaktflaten mellom svillens underside og ballastpukken øke. Dermed reduseres ballastspenninger og vibrasjoner. Dette vil trolig redusere knusing av ballast og svillemateriale og føre til lengre levetid av både sville og ballast.

5 Produksjon av tresviller
Tradisjonelt er det de av de lokale treslagene som lar seg kreosotimpregnere som er blitt benyttet til sviller, i Norden furu eller bøk. I Europa ellers er også eik aktuelt. Impregnering gjøres for å beskytte svillene mot råte.
5.1 Treslag
Treslagene har ulike egenskaper. Furu er relativt mykt, har liten motstand mot mekanisk slitasje og har kort levetid (25–30 år). Eik og bøk er hardtre og har dermed større slitasjemotstand. Levetiden er opp mot 40 år, på baner med liten trafikk kanskje opp til 50 år.
For sporveksler kan bøk ikke brukes. Dette skyldes at svillene vrir og bøyer seg og at svillelengden dermed må begrenses for å unngå feil i sporgeometrien.
Prismessig er furu rimeligst, men kontrakter som er inngått av tidligere NSB i senere tid (1994) viser at prisforskjellen i forhold til bøk og eik bare er ca. 10 %. Når en tar forskjellen i levetid i betraktning, betyr dette at bøk/eik kan konkurrere med furu som svilletre.
I enkelte tilfeller kan det være gunstig å bruke tropiske treslag som azobe e.l. Disse er meget harde og har ekstremt god motstand mot både råte og mekaniske slitasje. Treslagene kommer fra tropiske regnskoger og hensynet til miljøet taler derfor for at man bør begrense bruken.
5.2 Råsviller
Råsviller framstilles og overtas etter EN 13145 (Railway application – Track – Wood sleepers and bearers) Denne regulerer treslag (aktuelle er vanligvis furu, bøk og eik), tillatt kvalitet på treet, når trærne skal felles, hvordan råsvillene skal tørkes, krav til toleranser når det gjelder dimensjoner, skjevhet og bøying, størrelse på riss og standard svilledimensjoner. EN standarden er meget viktig når det gjelder bestilling og overtakelse av råsviller siden den gir klare regler for kvalitet og dermed et enkelt grunnlag for både produsent og kunde for når svillene skal avvises.
Trærne for svilleproduksjon skal felles på vinteren når det ikke forekommer fukttransport i treet og de skal sages samme vår. Deretter følger en periode med tørking som for bøkesviller tar 7–12 måneder. Eventuelt kan også kunstig tørking brukes. Fuktinnholdet skal før impregnering være mindre enn 25 %. Dette er viktig for å få en best mulig impregnering.
Svillene må lagres luftig under tørkingen for å unngå angrep av råtesopp. Spesielt er bøkesviller sterkt utsatte for soppangrep og forråtningsprosessen går meget raskt.

Tabell 3: Standard dimensjoner på tresviller etter EN 13145
| Group | I | e | d1) | r1) | |
|---|---|---|---|---|---|
| Form E1 | Form E2 | Form E1 + E2 | |||
| 1 | 260 | 160 | 160 | 200 | 80 |
| 2 | 250 | 150 | 160 | 200 | 80 |
| 3 | 260 | 130 | 130 | 170 | 60 |
| 4 | 240 | 150 | 160 | 180 | 70 |
| 5 | 240 | 160 | 160 | 180 | 80 |
| 6 | 240 | 140 | 160 | 180 | 70 |
| 7 | 240 | 130 | 130 | 170 | 60 |
| 8 | 220 | 130 | 130 | 160 | 50 |
| 9 | 250 | 125 | 209 | 230 | 100 |
| 10 | 305 | 125 | 255 | 280 | 100 |
| 11 | 305 | 150 | 255 | 280 | 125 |
| 12 | 250 | 130 | 200 | 225 | 105 |
| 13 | 300 | 130 | 250 | 275 | 105 |
| 14 | 200 | 120 | 110 | 140 | 40 |
1)minimum dimensions
Tabell 4: Geometritoleranser for tresviller etter EN 13145
| Lengde | ± 30 mm |
|---|---|
| Bredde (l) | + 10 mm / – 3 mm |
| Høyde (e) | + 10 mm / – 3 mm |

Eik og bøkesviller må sikres mot at riss utvikler seg til større sprekker. Tidligere ble det påsatt stålbånd rundt svilleendene, men nå brukes det vanligvis spikerplater som slås inn i endene av svillene. Denne metoden er langt mer effektiv og billig.
All mekanisk bearbeiding av svillene skal skje før impregnering, inkludert boring for svilleskruer. Dette er meget viktig for å unngå sår i impregneringen. Dersom svillene helt unntaksvis må bearbeides etter impregneringen, må det påføres et stoff som hindrer angrep av råtesopp.
5.3 Impregnering
Impregnering av tresviller skjer vanligvis som trykkimpregnering med kreosot. Den vanligst brukte metoden for impregnering er den såkalte Ruhping-metoden. Banene setter vanligvis krav til hvor mye kreosot som skal tas opp i svillene. Det er forskjellig fra treslag til treslag hvor mye kreosot som tas opp. For furu kan en regne med ca. 90 kg/m3, mens bøk kan ta opp ca. 160–180 kg/m3. Eik tar derimot opp bare ca. 45 kg/m3, noe som skyldes andelen kjerneved. Eik har imidlertid stor naturlig motstand mot råte.

Det er bare årringsveden som lar seg impregnere. Kjerneveden tar ikke opp impregneringsmiddel.
For å gi en bedre inntrenging av impregneringsoljen er det i Tyskland vanlig å gjøre en underboring i midten av svillen med 8 huller. Dette gir flere inngangsmuligheter for impregneringsoljen og forbedrer dermed fordelingen av kreosoten.
Det er svært viktig at svillene er helt fri for rester av bark. Impregneringsoljen kan ikke trenge gjennom barken og barkrester medfører dermed risiko for råte. Impregneringen skjer i store trykkjeler der kreosotoljen presses inn i treet under trykk. Som eksempel vises impregneringssyklusen som foreskrives av Deutsche Bahn for impregnering av bøkesviller [14].
Forsøk har vist at kreosotoljen er svakt kreftfremkallende og man skal derfor utvise en viss forsiktighet og bl.a. bruke hansker ved håndtering. Av arbeidsmiljøhensyn settes det derfor også krav til at svillene skal være mest mulig tørre på utsiden. Dette gjøres ved at svillene etter ferdig impregnering utsettes for vakuum en viss tid for å trekke ut overflødig kreosot fra overflaten (jfr. figur 28).
Pga. kreosotinnholdet er også destruksjon av gamle tresviller et problem. Svillene må tildels behandles som spesialavfall og forbrenning er ikke tillatt utenom i spesielle anlegg.

- Lufttrykk på 0,5–4 bar.
- Lufttrykket holdes minst 15 minutter
- Impregneringskjelen fylles med kreosotolje med temperatur 115–120 °C.
- Kreosotoljen varmes opp til minimum 100 °C, maximum 120 °C og denne temperaturen holdes minst 150 minutter.
- Oljetrykket økes til 7–8 bar. Temperaturen holdes oppe.
- Trykket holdes minst 60 minutter, varm olje etterfylles.
- Oljen tappes.
- Svillene luftes 10–15 minutter i lukket trykkbeholder.
- Trykket økes til 2,5–4 bar.
- Dette trykket holdes minst 15 minutter.
- Kjelen fylles med olje som under punkt. 3.
- Oljetrykket økes til 7–8 bar og temperaturen holdes oppe.
- Oljetrykket holdes i minst 120 minutter.
- Oljen tappes ut.
- Vakuum på 0,8–1,0 bar påsettes.
- Vakuum holdes i minst 30 minutter.
Ettervakuumet trekker ut overflødig olje.
6 Produksjon av Betongsviller
Betongsviller deles, som før nevnt, prinsipielt inn i to typer: Monoblokk- og toblokksviller. Førstnevnte er spennbetongsviller, mens sistnevnte er slakkarmerte.
6.1 Produksjonsmetoder
Betongsviller av monoblokktypen (spennbetongsviller) kan produseres etter to metoder:
- Støping av en eller to sviller om gangen med direkte avforming (uten herding). Spennarmeringen settes inn og spennes opp etter at svillene har herdet tilstrekkelig («Dywidag»-sviller).
- Støping av sviller etter langbenkmetoden, dvs. som lange elementer støpt rundt oppspente armeringsliner. Kort beskrevet skjer produksjonen slik:
- Oppspenning av armeringsliner
- Støping
- Herding ca. ett døgn
- Avspenning (dvs. spennkraften føres inn i betongen)
- Avsaging eller avbrenning av armering mellom sviller

Det meste av moderne svilleproduksjon gjøres etter den siste metoden. Den er mindre arbeidskraftintensiv, men krever større grunnlagsinvesteringer før produksjonen kan settes i gang.
Toblokksviller er ikke spennarmerte og produseres etter den førstnevnte metode med direkte avforming.
6.2 Produksjonskontroll
Det stilles strenge krav til produksjonskontrollen for betongsviller. Vanlige standardkrav til betongen skal overholdes, noe som kontrolleres ved utstøping av prøveterninger og -bjelker. Disse testes før avforming av svillene og etter 28 dager. Førstnevnte skjer for å sikre at trykkfastheten ikke er for lav til at spennkraften kan føres inn i betongen. Kontrollen etter 28 dager skjer for å godtgjøre at betongen er av tilfredsstillende kvalitet mhp. trykkfastheten og bøyestrekkfasthet.
Standarden EN 13230-1 angir kvalitetskrav til betongen. Iht. denne standarden skal min. trykkfasthet tilsvare klasse C45/55. Bane NOR krever min trykkfasthet på 60 Mpa og min bøyestrekkfasthet på 6 Mpa
Det forlanges i tillegg ytterligere kontroller for å godtgjøre at de ferdige svillene tåler de forutsatte belastningene. Dette skjer ved å utsette svillene for bøyebelastninger over skinnefestet og over midten av svillen. Standardene EN 13230-2 og EN 13230-3 angir krav til hhv. monoblokk- og toblokksviller.


7 Vedlikehold av tresviller
I tresvillespor vil man vanligvis få et forvarsel i god tid før det inntreffer feil som representerer noen sikkerhetsmessig fare. Feilene som oppstår skyldes råte eller mekanisk slitasje og vil vanligvis bli observert av målevogner i form av geometriske feil eller utvidelse av sporvidden. Vedlikeholdet vil da kunne få karakter av å forlenge svillenes levetid, f.eks. ved forsterking av skruehull, innlegging av kiler for å rette opp underlagsplatene, etterimpregnering eller ev. utbytting.
I det følgende skal metoder for registrering av svillenes tilstand og rehabilitering av svillene gjennomgås.
7.1 Registrering
For å kunne planlegge hvilke tiltak som skal settes i verk, omfanget og tidspunktet, må en registrere kvaliteten på svillene. Det er i prinsippet tre metoder som kan brukes: Visuell inspeksjon, automatisk registreringsutrustning og kontroll av skruenes feste. Sistnevnte kombineres med tiltrekking av skruene og planlegging av rehabiliteringsarbeid med dybling.
7.1.1 Besiktigelse i sporet
Den vanligste metoden for å registrere svillekvaliteten har til nå vært å foreta en besiktigelse ute i sporet. Denne metoden gir bare begrenset informasjon da det bare er de synlige skadene (nedkjørte plater, ytre råteskader etc.) som kan registreres. Om svillen er råtten innvendig eller om skruene har feste kan ikke avgjøres på en sikker måte og det er vanskelig å finne det riktige tidspunktet for når en sville må tas ut.
Det er ikke uvanlig at man ved en visuell inspeksjon tar feil i opptil 50 % av tilfellene vedrørende hvilke sviller som er for dårlige til fortsatt å ligge i sporet. Det er helt klart at en så stor prosent med feilbedømminger har store økonomiske konsekvenser i tillegg til eventuelle konsekvenser for sikkerheten.
7.1.2 Automatisk registrering
For å bedre registreringen av svillekvaliteten har det lenge vært ønske om et måleinstrument som kan foreta en objektiv bedømming. Et slikt instrument ble utviklet av Pandrol («Panlogger») og innkjøpt av JBV og VR for noen år siden.
Panloggeren består av en bærbar datamaskin og en teste-enhet. Målesystemet bygger på at svillen settes i vibrasjon ved hjelp av to «plastkuler» som slår mot overflaten. Instrumentet registrerer så responsen fra svillen. Denne er avhengig av svillens tilstand mhp. råte. På bakgrunn av responsen blir svillen klassifisert innenfor en skala fra 1–6. «Panloggeren» skal være kalibrert for den innvirkning som skinner og ballast har på resonanssvingningene i svilla.
I tillegg til den automatiske klassifiseringen av svillene, kan man for hver sville legge inn andre opplysninger manuelt, som f.eks. nedkjørte plater, løse skruer, sprekker, skinneskjøter og bruer.
Ved normal framdrift vil man kunne teste opptil 1000 sviller pr. dag. I «Panloggeren» kan måleresultatet fra 10 000 sviller lagres før den må «tømmes» over i en datamaskin (PC). Ved bearbeiding på PC-en kan man få ut resultatene for hver enkelt sville eller for seksjoner vist i tabeller og diagrammer. Det er også mulig å legge inn valgkriterier for å teste om det finnes strekninger hvor det ligger flere enn 3 sviller på rad som er i klasse 5 eller 6, dvs. sammenhengende partier med dårlige sviller.
Bane NORs erfaringer tyder ikke på at Panloggeren er spesielt godt egnet til å finne ut hvilke sviller som må byttes ut. Metoden er derfor aldri blitt tatt i bruk utover forsøk. Derimot kan den brukes for å finne fram til sviller som har god nok kvalitet for etterimpregnering (se senere avsnitt).
7.1.3 Testing av skruefestet/tiltrekking av skruer
Denne metoden er utviklet av VR og bygger på at det egentlig er skruenes feste som bestemmer om svillen er god nok til å bli liggende i sporet. Er befestigelsen i orden, kan svillen bli liggende. Om skruene er løse, kan man enten rehabilitere skruehullene med dybler/spiraler, eller hvis svillen bedømmes å være for dårlig, bytte den ut.
Metoden brukes av både VR, BV og JBV. Svillen merkes vanligvis for utbytting hvis mer enn 4–5 skruer (av 8) ikke har feste ved moment 150 Nm. Er færre skruer løse settes dybler i de skruehullene som ikke gir feste.
Fordelen med metoden er at en samtidig får gjort et vedlikeholdsarbeide som er nødvendig for å hindre nedbryting av svillen ved mekanisk slitasje, nemlig å trekke til skruene. Løse plater som ligger og slår i svillen ved togpassering fører til unødvendig stor slitasje på svillene og bør unngås.
7.2 Rehabilitering av tresviller
Rehabilitering av sviller kan foregå ved en direkte forsterking av skruefestet ved hjelp av dybler/spiraler, innlegging av plastkiler mellom underlagsplate og mellomlegg for å rette opp underlagsplaten/minske sporvidden samt ved å foreta etterimpregnering av svillene.
7.2.1 Rehabilitering av skruehull
En rehabilitering av skruehullene kan enten utføres med dybler av kunststoff eller ved bruk aluminiumspiraler. Begge metodene utføres uten at underlagsplaten fjernes fra svillen. «Keko-holk»-metoden er en standardmetode for rehabilitering av skruehullene.
Hovedmomentene i arbeidsgangen ved rehabilitering av skruefester med kunstoffdybler er:
- Testing av alle skruer med et bestemt dreiemoment (150 Nm)
- Merking av alle svilleskruer som er løse etter tiltrekking
- Uttrekking av alle løse skruer
- Boring av skruehull (gjennom hullene i underlagsplaten)
- Nedslåing av kunstoffdybel
- Nedsetting av svilleskrue
- Merking av de skruene som fortsatt er løse
Dersom mer enn 4–5 skruer i en sville ikke har feste ved 150 Nm, merkes svillen for utskifting. Hvor mange skruer som kan godtas å være løse etter at dybler er satt ned, må vurderes etter de lokale forhold, slik som kurvatur og trafikkbelastning.
Nedsetting av dybler medfører også at sporvidden minsker i kurver med utkjøring. Det er observert varig 5–10 mm bedring.
Erfaringer tyder på en forlengelse av svillens levetid på 7–8 år etter innsetting av dybler.


Aluminiumsspiraler for rehabilitering av skruefestet er i vanlig bruk i flere land. Spiralene er noe dyrere enn dybler og noe mer tungvinte i bruk, men fordelen er at en ikke må bore opp skruehullene. Spiralen settes ned med en skrumaskin og svilleskruen skrus ned og presser spiralen inn i frisk ved.
7.2.2 Kiling av underlagsplater
I skarpe kurver sliter gjerne underlagsplaten seg mer ned i svillen på yttersiden enn på innsiden. Dette er, sammen med ovale skruehull, årsaken til sporutvidelsen. BV og JBV benytter her kiler framstilt i plast for å rette opp underlagsplaten.
Sammen med en forsterking av skruefestet med dybler er dette en brukbar metode for å få kontroll med sporvidden. Kilene legges inn samtidig med at skruene likevel er fjernet for å sette ned dybler.
7.2.3 Etterimpregnering av sviller
Den største ulempen med tresviller er at de med tiden blir utsatt for råteangrep. Dette kommer av at kreosot ved trykkimpregnering bare trenger et stykke inn i svillene. Kjerneveden vil derfor ikke ha noen beskyttelse når svillene legges inn i sporet. Oppsprekking av svillene og derav følgende tilgang på fuktighet vil etterhvert medføre at det oppstår angrep av råtesopp [svamp]. Når prosessen først har startet vil den fortsette av seg selv med det resultat at svillene får store skader og ikke lenger kan ligge i sporet.
Det foreligger metoder som kan stoppe råteangrepet. Metodene bygger på reimpregnering med stoff som trenger inn i veden ved hjelp av den naturlige fuktighetsvandringen i svillen. Impregneringsmidler som brukes kan være natriumfluorid eller borsyre.
En metode for å etterimpregnere svillene er å sette ned staver av krystallisert borsyre (anhydrid-natrium-oktoborat) i hull som bores i svillene [16–17]. Stavene vil etter hvert løses opp og impregneringsmidlet trenger inn i veden ved hjelp av fuktvandringen. Ettersom fuktvandringen er størst til de stedene som er angrepet av råte vil mesteparten av impregneringsmidlet bli fraktet dit hvor behovet er størst.
Avhengig av hvor stor forlengelse av svillenes levetid som kan oppnås i forhold til kostnadene, vil etterimpregnering være en interessant metode. F.eks hevder Pandrol at deres metode med nedboring av staver av borsyre vil forlenge svillenes levetid med omtrent 10 år for en kostnad på ca. NOK 50 pr. sville.
Dersom det benyttes «Panlogger» til registrering av svillenes kvalitet vil man lettere få en oversikt over hvilke sviller som kan reimpregneres. På sviller i klasse 3 og 4 vil reimpregneringen normalt være mest effektiv.
En ulempe med impregneringsmidlene er at de er giftige. Anhydrid-natrium-oktoborat er mindre giftig enn natriumfluorid. Ved å følge de oppgitte forholdsregler hevder Pandrol at deres «Pandrol Timbershield Rods» ikke utgjør noen helsefare for de som gjør arbeidet.
8 Vedlikehold av Betongsviller
Det ble lenge antatt at et spor med betongsviller ville være nærmest vedlikeholdsfritt. At dette var en gal antagelse har en etter vært fått erfaring for. Ved JBV har det dessverre også forekommet avsporinger som skyldes feil ved betongsvillene. Det er derfor selvfølgelig nødvendig at vedlikeholdet må tas alvorlig.
Den store vanskeligheten med betongsviller er «skjulte» feil: Utslitte mellomlegg eller isolatorer, riss eller brudd i svillen og slitasje/nedknusing av betongsvillenes underside. For toblokksviller kommer dessuten problemet med korrosjon og brudd i forbindelsesstangen mellom de to blokkene.
Forholdet nødvendiggjør manuell besiktigelse i sporet for å holde feilene under kontroll. Ingen målevogn kan oppfatte at et mellomlegg er utslitt eller at fobindelsesstangen i en toblokksville er rustet bort, dvs. ikke før feilen har fått sikkerhetsmessige følger. Feilene fører også til omfattende og dyrt vedlikeholdsarbeid. Spesielt er utbytting av mellomlegg arbeidskrevende.
8.1 Slitte mellomlegg
Dette er en meget alvorlig feil. Hvis mellomlegget mangler, vil skinnen raskt grave seg ned i betongen på grunn av de store kontaktspenningene. Hvis dette forekommer i en kurve, vil flaten under skinnen bli slitt skrå som følge av de tverrgående kreftene fra trafikken. En risikerer da store sporutvidelser som kan føre til avsporinger.

Til en viss grad vil dette fenomenet kunne oppdages ved kjøring av sporgeometrisk målevogn, i alle fall hvis målehjulene har stor nok aksellast. I eksemplet ovenfor var imidlertid slitasjen under indre skinne i en skarp kurve og avsporingen skjedde i et godstog med lav hastighet. Et persontog ville her normalt ligget an mot ytre skinne og Mauzin-vognen hadde ikke observert feilen.
Manuell inspeksjon med stikkprøver vil være den eneste sikre måte for å kunne oppdage slitte mellomlegg. Utbytting av mellomleggene er et omfattende arbeide hvor befestigelsen må løsnes og skinnen løftes. Automatisering er vanskelig og lønnsutgiftene blir meget høye i forhold til kostnaden for komponenten som byttes ut. Det er meget viktig at kvaliteten på mellomleggene er god med hensyn til slitasje. Noen kroner ekstra pr. mellomlegg for å få best mulig kvalitet vil være godt anvendte penger.
De tidlige tynne mellomleggene i gummi var lite slitesterke og gikk i oppløsning og var meget farlige, men også de mer moderne plastmellomleggene (EVA) slites. Hvordan de nye 10 mm mellomleggene i gummi som er tatt i bruk hos de forskjellige forvaltningene vil oppføre seg når det gjelder slitasje, gjenstår å se.
8.2 Slitte isolatorer

Dette er hovedsaklig et regularitetsproblem. Slitte isolatorer medfører dårlig sporisolasjon og dermed signalfeil som følge av såkalt «falskt belegg». Spesielt er strekninger med mye kurver og høye kurvehastigheter utsatt.
Når signaler går i «stopp» og togene blir forsinket, er det for sent. Skal togforsinkelser som følge av slitte isolatorer unngås, må isolatorene inspiseres og byttes før slitasjen blir stor. Isolasjonsevnen i sporet kan kontrolleres ved hjelp av elektrisk måleutstyr.
8.3 Nedknusing av svillens underside
Slik nedknusing kan forekomme på steder med store ballastspenninger, dvs. ved tynt ballastlag på hard grunn. Det danner seg da vanligvis «pumpesviller» (dvs. at svillene ligger i en slags slurry). En vil da oftest rense ballasten eller grave ut de dårlige massene. Det vil da være viktig å inspisere svillene samtidig og bytte ut slitte sviller. Samtidig må man om mulig legge inn et tykkere ballastlag.
Ved JBV er det observert sviller som er slitt ned til det andre laget med armering på slike steder. Dette svekker svillen og vil senere kunne føre til brudd.
8.4 Brudd i toblokksviller
Ved korrosjon av stangen som forbinder de to delene av en toblokksville, vil en etter en tid kunne få brudd. Det betyr igjen at en ikke har noen kontroll over sporvidden og dette er selvsagt en meget alvorlig feil.
Problemene kan spesielt oppstå på steder med korrosivt miljø, f.eks. ved stasjonsplattformer eller ved planoverganger hvor salt kan forekomme.
DSB er det eneste jernbaneselskapet i Norden som har brukt toblokksviller som standard. Det er eksperimentert med utstyr som måler om det er brudd ved hjelp av elektrisk strøm, men utstyret er ikke helt pålitelig. Manuell inspeksjon må derfor foretas.
8.5 Virkning av riss i betongsviller
Alvorlige riss oppstår gjerne på steder der svillen har blitt overbelastet, f.eks. som følge av sår i skinneoverflaten eller uren ballast med stein. Riss oppstår også ved alkaliereaksjoner. Rissene er ikke farlige hvis de ikke åpner seg. Gjør de det, vil vann trenge inn og en kan få korrosjon i armeringen. Dette er en meget farlig feil, siden den kan føre til at svillen brekker.
En av de hardest belastede delene av betongsvillen er under skinnen. Riss som opptrer der kan være meget vanskelige å oppdage før de utvikler seg til alvorlige sprekker siden de ofte er skjult av skinnen eller ballasten.
Figur 36 viser resultatet av en slik sprekk på Østfoldbanen (hovedlinjen Oslo–Gøteborg). Svilledelen på bildet hadde brukket av og falt ned i fyllingsskråningen. Ved nærmere ettersyn av kurven (R=500 m) fant man flere sviller som var ødelagt på samme måte, men hvor armeringen ennå ikke hadde røket. Tillatt hastighet på stedet var 100 km/h.

I den senere tid er det observert at riss i betongsviller også skyldes forurensning fra eksterne omgivelser. Årsaken er at sammensetningen av visse typer tilslagsstoffer sammen med sementpastaen reagerer på bestemte ytre forhold. Rissene blir forårsaket av en såkalt alkaliereaksjon.
En alkaliereaksjon er en kjemisk-fysisk reaksjon mellom visse typer tilslagsstoffer og sementpastaen. Selve reaksjonen er avhengig av høy fuktighet (relativ fuktighet > 80 %), høyt alkalieinnhold i betongen og et reaktivt tilslag. Alkaliereaksjonene vurderes som skadelige i de tilfeller hvor riss kan dokumenteres på grunn av slike reaksjoner. De reaktive tilslagsstoffene finnes i visse typer bergarter og benyttes i produksjonen av betong.
I Norge er det i den senere tid observert alkaliereaksjoner i betongsviller.
På grunn av ovennevnte er det interessant å undersøke en eventuell sammenheng mellom graden av riss og svillenes kapasitet ved bøyepåkjenning systematisk. Da svillene blir utsatt for et stort antall sykliske laster ved framføring av det rullende materiell, vil det også være av betydning å undersøke hvilken innvirkning rissdannelsen har på betongsvillens motstand mot utmatting. Videre er det interessant å vite hvilke bergarter som benyttes som tilslagsstoff i sementpastaen og som forårsaker reaksjonene.
Dette skal beskrives nærmere. I den forbindelse er et antall sviller ved Trofors stasjon på Nordlandsbanen undersøkt ved SINTEF Bygg og miljøteknikk. Det etterfølgende bygger på rapport utgitt av SINTEF:
- Inndeling i skadeklasser
- Registrering og opptegning av rissmønster på svillene
- Strukturanalyse
- Statisk belastning
- Utmatting
8.5.1 Beskrivelse av sville
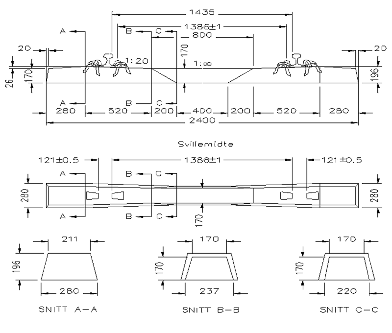
Det er en eldre type av Jernbaneverkets betongsville som ble undersøkt. Den har betegnelsen NSB ENHETSSVILLE og er vist i figuren på neste side.

8.5.2 Inndeling av betongsvillene i skadeklasser
Med utgangspunkt i de undersøkte svillene ble det definert 5 skadeklasser. Skadeklassene er gitt ved at den øvre rissviddegrense inngår i den aktuelle klasse. For å få et statistisk representativt utvalg må minimum 3 sviller undersøkes i hver skadeklasse. Videre er det nødvendig med like mange referansesviller som ikke har skader i form av riss.
De skadede svillene i skadeklassene 1, 2, 3, 4 og 5 har ligget i sporet like lenge og ble produsert ved en betongsvillefabrikk i et bestemt år (1973). Svillene har derfor vært utsatt for den samme belastning ved framføring av det rullende materiell. Tabellen under angir inndelingen.
Tabell 5: Inndeling av betongsviller i skadeklasser
| Skadeklasse | Maks. rissvidde (mm) |
|---|---|
| 0 | 0,00–0,10 |
| 1 | 0,10–0,25 |
| 2 | 0,25–0,50 |
| 3 | 0,50–1,00 |
| 4 | 1,00–1,50 |
| 5 | > 1,50 |
I tillegg benyttes referansesviller. Disse er representert i skadeklasse 0 og består av 2 typer:
- Skadefrie sviller fra forsøksstrekningen produsert i 1978 og som derfor har blitt forbelastet fra togtrafikken.
- Sviller som ble produsert for testprogrammet og som derfor ikke har vært i sporet (ingen forbelastning fra togtrafikken).
8.5.3 Registrering og opptegning av rissmønster på betongsvillene
Det er vist en overflatebeskrivelse av sideflatene og registrering av riss på en representativ sville i skadeklasse 0 og skadeklasse 2. Det framgår tydelig forskjeller i omfang og størrelse på rissene i de ulike skadeklassene. Svillen i skadeklasse 0 har bare få riss og liten rissvidde samt lengde. Det er også verdt å legge merke til at for sville i skadeklasse 2 er det et betydelig omfang av riss i området ved befestigelsen.


8.5.4 Strukturanalyse
Hensikten med en strukturanalyse er å undersøke forekomsten av alkaliereaktive bergarter og alkaliereaksjoner som årsak til rissdannelser. Selve analysen består av:
- makroanalyse av planslip undersøkt i mikroskop og i UV-lys (ultra violett) i et snitt vinkelrett på svillens lengdeakse omtrent midt på svillen
- mikroanalyse av tynnslip undersøkt i polarisasjonsmikroskop med påmonterte UV filtre plassert i overflaten
Ut fra gjeldende kunnskap forårsaker følgende bergarter alkaliereaksjoner:
- metagråvakke
- fyllitt
- ryolitt
- siltstein
- sandstein
- kataklasitt
- silt-leirstein
- kvartsitt
Alle disse bergartene ble funnet i de undersøkte svillene. I noen av svillene var det forekomst av flere bergarter.
I figuren under er gjengitt undersøkelsen av en sville i skadeklasse 1. Det er observert rissdannende alkaliereaksjoner i begynnende stadium forårsaket av bergartene. Riss stråler også ut fra noen av spenntauene.

8.5.5 Statisk lastprøve
Formålet med statisk prøving er å bestemme risslast og bruddlast.
Risslast er bestemt som det lasttrinn hvor det oppstår tydelig synlige bøyeriss på svillesidene.
Bruddlast er bestemt som registrert maksimal last ved langsom påføring med hydrauliske jekker. Lastene blir påført i trinn på 10 kN pr. jekk. Med 2 jekker blir totallasten i hvert belastningstrinn 20 kN.
I kravspesifikasjonen for framstilling av betongsviller kreves at det på betongsvillefabrikk skal gjøres statiske belastningsprøver iht. definerte prosedyrer. Bl.a. gjennomføres slike prøver i svilleende ved befestigelsen for skinneleiet.
Iht. dette ble det utført belastningsprøver for observasjon av riss i begge svilleender og brudd i den ene svilleenden. Dessuten ble det gjort prøver mht. maksimal statisk belastning i den andre svilleenden. Dette er gjengitt i tabell nedenfor:
Tabell 6: Resultater fra belastningsprøver for sviller utsatt for alkaliereaksjoner i begynnende stadium
| Skadeklasse | Risslast i ende 1 | Bruddlast i ende 1 | Risslast i ende 2 | Maks. statisk belastn. ende 2 |
|---|---|---|---|---|
| kN | kN | kN | kN | |
| 0 (12) | 118 | 276 | 118 | 186 |
| 0 (13) | 118 | 298 | 137 | 206 |
| 1 (3) | 98 | 255 | 98 | 177 |
| 1 (5) | 78 | 314 | 78 | 177 |
| 2 (1) | 118 | 271 | 98 | 186 |
| 2 (2) | 98 | 276 | 98 | 196 |
| 3 (9) | 78 | 261 | 98 | 177 |
| 3 (11) | 98 | 286 | 78 | 147 |
| 4 (7) | 98 | 254 | 98 | 157 |
| 4 (8) | 98 | 244 | 98 | 167 |
| Middelverdi | 100 | 273 | 100 | 178 |
| Referanse 1 | 137 | 258 | 118 | 157 |
| Referanse 2 | 118 | 272 | 118 | 157 |
Referansesvillene 1 og 2 er de svillene som ble produsert i forbindelse med prosjektet og som ikke har hatt forbelastning i sporet.
Det framgår at midlere risslast for begge svilleender er 100 kN. I kravspesifikasjonen til Bane NOR kreves det 106 kN.
Videre kan det registreres en svak synkende tendens til kapasitet for risslast med stigende skadeklasse. Det finnes imidlertid unntak.
Tabellen antyder også en svak tendens til at bruddlastene avtar noe med økende skadeklasse.
8.5.6 Utmatting
Resultatene av utmattingsprøvene ordnet etter skadeklasse er vist i tabell under. Prøvene ble gjort i skinneleie.
Det legges merke til at de fleste sviller ble prøvd med maksimal last lik 180 kN. Antall lastvekslinger til brudd for disse svillene varierte fra 70 000 til 306 000.
2 sviller ble helt eller delvis prøvd med 150 kN maksimallast. Disse fikk ikke brudd. Den ene svillen var i skadeklasse 0 og den andre i skadeklasse 2.
En sville i skadeklasse 1 ble belastet med maksimallast 165 kN og fikk utmattingsbrudd ved nesten 2 000 000 lastvekslinger.
Dette er meget interessante observasjoner. De undersøkte svillene som ble produsert i 1973, ble dimensjonert og produsert for en støttepunktkraft lik 150 kN. Med maksimallast 150 kN i den sykliske belastningsprøve på sville i skadeklasse 2 ble utmatting ved 2 000 000 lastvekslinger ikke registrert. Videre ved maksimallast lik 165 kN i en annen syklisk belastningsprøve for sville i skadeklasse 0 ble det gjennomført 1 130 000 lastvekslinger uten at det kom til brudd. Derimot ved høyere maksimallast (180 kN) ble det registrert brudd ved etter forholdene et lavt antall lastvekslinger.
Tabell 7: Antall lastsykler ved brudd for de undersøkte svillene
| Skadeklasse | Maks. last (kN) | Min. last (kN) | Antall lastsykler | Lastfrekvens Hz | Merknad |
|---|---|---|---|---|---|
| 4 (8) | 180 | 30 | 225000 | 4 | |
| 3 (11) | 180 | 30 | 70000 | 3 | |
| 3 (9) | 118 | 298 | 172000 | 3 | |
| 2 (1) | 150 | 30 | 2510000 | 3–5 | ikke brudd |
| 2 (2) | 180 | 30 | 206000 | 2 | |
| 1 (3) | 180 | 30 | 96000 | 2–3–2 | |
| 1 (5) | 165 | 30 | 1991700 | 4–5 | |
| 0 (12) | 180 | 30 | 306200 | 3–2–3 | |
| 0 (13) |
165 172 180 |
30 30 30 |
1130000 90000 269200 |
3 | ikke brudd |
I tabellen under er resultatene fra utmattingsprøvene for referansesvillene vist.
Tabell 8: Resultat av utmattingsprøve for de nyproduserte referansesvillene (uten forbelastning i sporet)
| Skadeklasse | Maks. last (kN) | Min last (kN) | Antall lastsykler | Lastfrekvens Hz | Merknad |
|---|---|---|---|---|---|
| 0 | 180 | 30 | 25000 | 2 | glidning |
| 0 | 165 | 30 | 38000 | 2 | glidning |
Den ene enden av de 2 referansesvillene ble prøvd med maksimal last lik 180 kN og 165 kN. Det framgår at utmattingsbrudd oppsto ved relativt få antall lastvekslinger. Bruddet var dessuten sterkt influert av glidning av spenntauene.
8.5.7 Konklusjoner
Strukturanalysene viser at rissmønstrene på de undersøkte svillene er forårsaket av alkaliereaksjoner i et begynnende stadium. Reaksjonene har i flere tilfeller ført til at riss går gjennom hele svilletverrsnittet inn til spenntauet.
Rissdannelsen har ført til bare moderat nedsatt risslast og bruddlast ved statisk belastning.
Videre tyder også resultatene på at utmattingsfastheten bare er moderat influert.
Ovennevnte sviller er testet mht. kapasitet for risslast og bøyelast ved statisk prøving samt for utmatting i de ulike skadeklassene. I strukturanalysen kunne tilstanden til spenntauene observeres. På grunn av rissenes forløp i betongtverrsnittet er det lite sannsynlig at spennarmeringen har blitt utsatt for korrosjon. Dette til tross for at rissene i noen tilfeller går helt inn til spenntauene. Rissvidden er imidlertid ved spenntauene meget liten.
Det er påpekt at betongsville av type NSB ENHETSSVILLE har en oppspenningskraft lik 270 kN. Med det beregnede tap for spennkraft over tid (30 %) gir dette en teoretisk støttepunktkraft lik 150 kN. Forsøkene dokumenterer at svillens holdbarhet mot utmatting er som forutsatt ved gjentagende belastninger på 150 kN. Ved bare marginalt større gjentagende belastninger kommer det etter kort tid til brudd i konstruksjonen. Dette er iht. de teoretiske forutsetningene.
Det gjøres uttrykkelig oppmerksom på at alkaliereaksjonene er i et begynnende stadium. Det er mulig å akselerere reaksjonene i laboratorium. Dermed vil det også være mulig å kunne forutsi virkningen av alkaliereaksjoner på en betongsville i sporet og når den må skiftes ut. Slike forsøk gjenstår å utføre.
8.6 Overflatebehandling av betongsviller
SINTEF har i forbindelse med et postdoktorarbeid startet et prosjekt (høsten 1998) mht. å undersøke virkning av overflatebehandling med egnet materiale for betongsviller. Hensikten er å finne metoder og materiale for å eliminere eller forsinke prosessen av alkaliereaksjoner. Prosjektet vil således kunne få stor nytteverdi for Bane NOR. Doktorarbeidet støttes av Norsk Forskningsråd med bidrag fra Bane NOR.
9 Tre- eller betongsviller?
Det eksisterer ikke noe enkelt svar på spørsmålet om tre eller betongsviller bør velges. Kun en teknisk og økonomisk analyse kan gi grunnlag for beslutning. Imidlertid skal en vokte seg vel for å ha forutinntatte meninger. Svaret kan etter min erfaring like gjerne bli at tresviller er det beste alternativet som at betongsviller er det.
9.1 Vedlikehold
Tidligere var det populær antagelse at betongsviller nærmest var vedlikeholdsfrie og at de ville løse alle de problemene en hadde i tresvillesporet. Erfaring har imidlertid tydelig vist at så ikke er tilfelle. Riktignok er ikke problemene de samme som med tresviller, men det er ikke dermed riktig å anta at de er mindre.
Som det går fram av forrige avsnitt er det en rekke ting en må passe på i betongsvillespor og de feilene som kan oppstå er ofte alvorlige. Ved JBV regner vi at et spor med bøkesviller i alle fall ikke vil være mer kostbart å vedlikeholde enn et spor med betongsviller. For furusviller må en regne med økt vedlikehold siden disse er mindre motstandsdyktige mot slitasje og råtesopp.
9.2 Valg av svilletyper
Bortsett fra vedlikeholdsproblemer og -kostnader, må det tas hensyn til andre økonomiske og tekniske faktorer når valg av svilletype skal gjøres. Etter at det ble stilt spørsmål ved riktigheten av å fortsette svillefornyelsen utelukkende med betongsviller (i Norge har det nesten ikke blitt kjøpt tresviller siden 1973), ble det gjort en vurdering av de tekniske og økonomiske følgene av å gå over til fornyelse med tresviller på deler av nettet. Bakgrunnen for dette var å forsøke å spare inn kostnader som følge av de daværende trange budsjetter for fornyelse.
Disse vurderinger fra 1990 brukes som eksempel i det følgende. Vær oppmerksom på at tallene som brukes ikke nødvendigvis vil være de samme for de andre jernbanene. Svilleprisene kan variere mye. Imidlertid kan vurderingene brukes som et eksempel på noen faktorer en bør ta med i betraktningen ved et valg mellom tre- eller betongsviller.
9.2.1 Faktorer for valg
Følgende faktorer vil være viktige for å gjøre et valg mellom tre- eller betongsviller:
- Enhetspriser: Det ble vurdert at en bøkesville ville være ca. 230 kr., eller 30% billigere, ferdig innlagt enn en betongsville. Dette skyldes bl.a. at hey-back underlagsplatene og befestningen på tresvillene kan reanvendes, at behovet for ballastsupplering blir mindre ved den byttemetoden som brukes og at tresviller er rimeligere enn betongsviller i innkjøp. Furusviller og bøkesviller kom omtrent likt i pris. Det spesielle for norsk jernbane er her at vi allerede stort sett har en tilfredsstillende befestigelse i tresvillespor. Spikerbefestning forekommer ikke. Innkjøp av underlagsplater og klemfjærer for den billigste befestningen som er brukbar i helsveist spor, nemlig Pandrols Gauge-lock ville kommet på ca. NOK 100–120 pr. sville og redusert prisfordelen.
- Sikkerhet mot solslyng er noe lavere for et tresvillespor. Sidemotstanden i sporet senkes med 25 %. Dette kan medføre dårligere punktlighet i perioder med høye skinnetemperaturer.
- Tidspunkt for fornyelse: Ved stikkbytting med tresviller vil fornyelsen kunne strekkes ut i tid i forhold til totalbytte med betongsviller. Dette skyldes at en til enhver tid bare bytter de dårligste svillene, mens en ved bytte til betongsviller må foreta totalbytte når de dårligste svillene er modne for fornyelse. Levetiden for tresvillene vil dessuten kunne forlenges ytterligere vha. rehabilitering av skruehull med plastdybler eller spiraler.
- Ut fra aldersfordelingen av svillene ble det beregnet at vi med stikkbytte kunne strekke svillefornyelsen ut med minst 10 år i forhold til det som ville være nødvendig ved totalbytte med betongsviller.
- Levetiden for en bøkesville må antas å være omtrent like lang som for en betongsville på mindre trafikkerte baner. Vedlikeholdsbehovet bør også omtrent kunne likestilles. For furusviller må en regne med kortere levetid og økt vedlikehold.
- Stikkbytte vil kreve flere timeverk pr. innlagt sville enn ved totalbytting. Dette personalet er det ikke bruk for utenom byttesesongen og det ble forutsatt dekket med ekstrapersonale i sommertiden.
9.2.2 Konklusjoner
Hovedfordelene med tresviller ble funnet å være den lavere prisen pr. innlagt sville og at det er mulig å strekke svillebyttet lengre ut i tid. Ulempen er den lavere motstanden mot solslyng/sideforskyvning og for furusvillene økt vedlikehold. På grunn av at prisforskjellen mellom furusviller og bøkesviller var meget liten, fant man at bøkesviller skulle brukes som standardsville, og at furusviller bare skulle brukes i sidespor.
For hovedlinjenes del veide hensynet til punktligheten og sikkerheten mot solslyng og sideforskyvning av sporet tungt, spesielt på grunn av høye kurvehastigheter. Av den grunn ble det forutsatt brukt betongsviller ved fornyelse på disse banene.
For de mindre viktige banene fant en at de økonomiske fordelene ved overgang til svillefornyelse med tresviller var såvidt store at det ikke kunne forsvares å fortsette med fornyelse med betongsviller. Den beregnede forskjellen i enhetspris pr. innlagt sville var også så stor at tresvilleprisen måtte øke svært mye før lønnsomheten ble tvilsom.
Etter denne vurderingen ble det bestemt at tresviller skulle beholdes på ca. 20 % av det norske nettet. Den totale innsparingen i bevilgningsbehov ville med det kunne bli minst 500 millioner kr. I tillegg kommer så fordelen ved at bevilgningene kan strekkes noe ut i tid.
9.3 Steder hvor tresviller bør benyttes
På en del steder er tresviller det eneste riktige alternativet, også på hovedlinjer. Det gjelder bl.a. steder der det ikke er mulig å oppnå tilstrekkelig tykkelse på ballasten. Bruk av betongsviller på slike steder vil føre til store problemer med nedknusing av ballasten og/eller ødelagte betongsviller og dermed økte vedlikeholdskostnader.
Som eksempler på steder der betongsviller ikke bør brukes kan nevnes:
- Tunneler med begrenset høyde.
- Under bruer med begrenset høyde på hard undergrunn.
- På traubruer. Også med mulighet for 30 cm ballasttykkelse kan man her få problemer pga. hydrostatisk spenningstilstand i ballasten.
- I overgangen mellom stålbruer uten ballast til vanlig spor. Her bør det brukes tresviller pga. at det ofte er et hardt parti over landkarene, dessuten er *det lettere å feste ledeskinner til tresviller.
Litteraturhenvisninger
- Parzefall – Eine kritische Wertung der Belastungsannahmen, der Schwellenbemessung und der Schwellenprüfung. Technische Universität München 1986.
- Stjern – Ny betongsville for NSB – Forstudie. Taugbøl & Øverland 1989.
- ORE D71 Rp9 – Beanspruchung der Betonschwellen 1969.
- Schultheiss/Schulz – Schwellen für die Deutsche Bundesbahn. ETR 10/1985.
- Eisenmann – Die Schiene als Träger und Fahrbahn. Die Eisenbahnschiene. Verlag W. Ernst & Sohn 1977.
- Esveld – Modern Railway Track. MRT Productions Duisburg 1989.
- Nylander – Foredrag NBI-kurs 1989.
- Betonsvelle/Befæstigelse. Rapport fra DSB Banetjenesten 1986.
- Diverse interne NSB-rapporter vedrørende strategier for fornyelse av overbygningen og utvidet bruk av tresviller 1989/90.
- Beräkningsnormer för betongsliprar. Informasjon fra Nordisk Baneteknisk Samarbeide 1985.
- Kreitz – Rälen som bärverk. Notat til NBIU 1985.
- Stjern – Vertikalspenninger mot ballast formasjonsplan 1985.
- Schultheiss – Grundsätze für die Konstruktion von Gleiskomponenten unter Berücksichtigung der Lebenszykluskosten. Notat til NBIU 88/89.
- AVAIN – Nordisk sammenstilling 1991.
- Eisenmann – Foredrag om sporet ved 75-års jublieet ved Bundesbahn-Zentralamt, München.
- Beauford – Preservation treatment of wooden sleepers. Railway Technology International 1988.
- Swedish Wood Preservation Institute – Remedial treatment of creosoted railway sleepers of redwood by selective application of boric acid. Stockholm 1979.
- Sørli – Overbygningens komponenter – Sviller, Kompendium, NBIU 1994.
- SINTEF – Undersøkelser av betongsviller med alkaliereaksjoner ved statisk og syklisk belastningsprøvning 1997.
- Arup University – Composite Sleeper: Circular Economy in Rail, Research Report, 2022.