Sporveksler
Publisert: 24. september 2011
Oppdatert: 4. februar 2025
1 Innledning
Sporvekselen er den konstruksjonen som gjør det mulig å velge mellom to eller flere togveier. Sporvekselen gir oss fleksibilitet i et sporbundet transportsystem.
Dette kapittelet omhandler i hovedsak sporvekselens konstruksjonsmessige oppbygging og dens komponenter. Sporvekselen geometriske linjeføring blir behandlet i L531, kap. 2 – sporgeometri.
2 Sporvekseltyper
2.1 Enkel sporveksel
En enkel sporveksel består av et rett hovedspor og et krumt avikespor. Avhengig av om det avvikende sporet sett fra tungespissen dreier til høyre eller venstre, benyttes betegnelsen høyre eller venstre sporveksel.
I sporveksler med kort kurve danner avikesporet en sirkelkurve som starter ved sporvekselens stokkskinneskjøt og slutter foran skinnekrysset, dvs. at skinnekrysset er rettlinjet i begge spor.

I sporveksler med lang kurve danner avikesporet en sirkelkurve som går gjennom skinnekrysset. De fleste enkle sporveksler har lang kurve.

Avikesporet inneholder en overgangskurve (klotoide) som et av de sporgeometriske elementer.

I Norge finnes klotoideveksler for 60E1 skinneprofil med grunngeometrien (stigningen) 1:18 og 1:26. Figur 4 viser disse to sporvekseltypene på Gardermobanen ved Lillestrøm stasjon. Til høyre ser vi 1:26 – sporveksel med bevegelig krysspiss og til venstre har vi sporveksel med stigning 1:18.

2.2 Kurveveksel
En kurveveksel er en enkel veksel med lang kurve som er krummet slik at både hovedspor og avikespor danner en sirkelkurve.


2.3 Usymmetrisk dobbeltveksel
Skal to spor avvike til usymmetrisk dobbeltveksel hver sin side av hovedsporet kreves normalt to enkle sporveksler etter hverandre. For å spare plass kan det benyttes en usymmetrisk dobbeltveksel som består av to enkle sporveksler hvor tungepartiene til de to vekslene er plassert rett etter hverandre. En usymmetrisk dobbeltveksel har tre skinnekryss og har samme radius i begge avvik. Usymmetriske sporveksler anskaffes ikke lenger i Bane NOR.

2.4 Enkle og doble kryssveksler
En kryssveksel er en sammensatt sporveksel som kan legges inn der to spor krysser hverandre. En enkel kryssveksel har mulighet for avvik til en side mens en dobbel kryssveksel har mulighet for avvik til begge sider. Kryssveksler har to endekryss og to sidekryss. Tungepartiene ligger vanligvis innenfor endekryssene.


2.5 Sporkryss
Et sporkryss er en konstruksjon som bygges inn der to spor skal krysse hverandre. En kryssveksel uten tungeanordninger definerer vi som et sporkryss.

2.6 Oversikt over sporvekseltyper
Hvilken sporvekseltype med hensyn på stigning/radius man velger er ofte en avveining mellom ønske om hastighet i avikesporet og plassen man har tilgjengelig. Tabell 1 viser hvilke sporvekseltyper som for tiden anskaffes i Bane NOR. Vi ser at byggelengden øker betraktelig dersom vi ønsker høyere hastighet i avvik.
Tabell 1: Sporvekseltyper som anskaffes av Bane NOR
| Sporvekseltype | Stigning/radius | Største hastighet i avvik [km/h] | Byggelengde [m] |
|---|---|---|---|
| Enkel veksel – kort kurve | 1:9 R190 | 35 | 27,1 |
| Enkle veksler – lang kurve | 1:9 R300 | 40 | 33,2 |
| 1:12 R300 | 65 | 41,5 | |
| 1:14 R760 | 80 | 54,2 | |
| 1:15 R760 | 80 | 54,2 | |
| Enkle veksler – klotoide | 1:18,4 R1200 | 100 | 65,4 |
| 1:26,1 R2500 | 140 | 94,6 | |
| Dobbel kryssveksel | 1:9 R190 | 40 | 34,9 |
3 Sporvekselkomponenter
Sporvekselen kan overordnet deles inn i:
- tungeparti
- mellomskinner
- kryssparti
Hoveddeler til sporveksel
Figur 10 viser en skjematisk oversiktstegning av en enkel sporveksel. På figuren er det angitt betegnelsen for de større konstruksjonskomponenter i en sporveksel. Figur 11 viser hoveddeler i et sidekryss i en kryssveksel eller sporkryss.

- Krum tunge og rett stokkskinne
- Rett tunge med krum stokkskinne
- Mellomskinner
- Ledeskinner
- Skinnekryss
- Hovedspor
- Spor i avvik
- Stokkskinneskjøt (SS)
- Sporvekselens bakkant (BK)

3.1 Tungeparti
Et tungeparti består av to tungeanordninger. En tungeanordning består av en fast stokkskinne og bevegelig tunge med nødvendige konstruksjonselementer for feste til svillene og for bevegelse av tungen.
Figur 12 viser de 4 varianter av tungeanordninger i en enkel sporveksel, avhengig av om vekselen har avvik til venstre eller høyre, og om tungen er rett eller krum.

Det finnes tre typer av tunger i sporet:
- Leddtunger
- Fjærtunger
- Fjærskinnetunger
I hovedspor skal det i sporveksler benyttes fjærtunger eller fjærskinnetunger.
3.1.1 Leddtunger
Tungen svinger om et ledd i tungeroten. Konstruksjonen har normalt en tapp på undersiden av leddet som tungen dreier seg om. Tungen ligger på glideplater i det bevegelige partiet. Sporveksler med leddtunger finnes i dag bare på eldre sporveksler, i hovedsak på sidespor og stasjonstomter.
I leddtungeveksler får vi store slagpåkjenninger i leddet ved tungeroten, noe som øker nedbrytningen av sporkomponentene og fører til dårligere komfort ved togpassering.
3.1.2 Fjærskinnetunge
Fjærskinnetunger er smidd i bakkant til normalt skinneprofil. Denne bakkant sveises sammen med et skinnestykke av normalt skinneprofil. Sveisen er sikret med en lask. I dette skinnestykket er en del av foten frest vekk slik at treghetsmomentet om y-aksen er redusert. Bæreevnen til dette skinnestykket blir ikke vesentlig redusert.


Bevegelse av tungen skjer ved en elastisk bøying av partiet med redusert tverrsnitt bak tungeprofilet. Sporveksler med korte tunger har normalt fjærskinnetunger.
3.1.3 Fjærtunge
Fjærtungen er den mest moderne tungekonstruksjonen vi har og finnes på alle nye sporveksler med skinneprofil 54E3 og 60E1. En fjærtunge beveger seg ved en elastisk bøying av hele tungeprofilet som har en asymmetrisk form. Tungen ligger på glideplater i det bevegelige partiet.
I bakkant er tungen smidd til normalt skinneprofil og kan dermed sveises direkte til mellomskinnene. I området hvor tungen har normalt skinneprofil er den festet til svillene med normal skinnebefestigelse.

3.1.4 Stokkskinner
Stokkskinnen er tilvirket av et vanlig skinneprofil. I området ved tungespissen er stokkskinnen «underhøvlet» slik at tungespissen blir liggende under stokkskinnens kjørekant. Dette for å redusere slitasjen på tungespissen.

For at ikke stokkskinnen og tungen skal forskyve seg i forhold til hverandre i lengderetningen blir de låst til hverandre ved hjelp av en tungevandringskontroll. Figur 16 viser hvordan stokkskinnen og tungen låses til hverandre i 49E1-veksler ved hjelp av tapper som er sveist fast i underlagsplatene. Denne konstruksjonen gir svært liten bevegelsesmulighet for tungen i lengde-retningen. Dette kan noen ganger resultere i vridning av underlagsplater og sprekker i betongsviller som følge av svært store kraftoverføringer mellom tunge og stokkskinne i dette tverrsnittet.

Figur 17 viser tungevandringskontrollen som finnes på 54E3 og 60E1-vekslene. Dette er en langt bedre konstruksjon hvor tungene kan bevege seg noe uten at de låses fast med uheldige kraftoverføringer som følge.

3.1.5 Glideplater
Hele den bevegelige delen av en sporvekseltunge ligger på glideplater. Glideplatene har to funksjoner:
- De skal bære tungen og overføre belastningen ved togpassering fra tungen og ned i svillene.
- De skal yte minst mulig friksjon ved bevegelse av tungen.
Selve glideplaten er integrert i en glidestolplate som er festet med fjærer eller svilleskruer til svillen. Vanligvis består glideplatene av smidd stål eller støpestål hvor lav friksjon oppnås gjennom å smøre platene med spesielle smøremidler. I tillegg til å gi lav friksjon beskytter smøringen mot korrosjon og slitasje. Smøremidler som anvendes ved Bane NOR i dag må tilfredsstille meget strenge miljøkrav. Det kreves bl.a. at min. 80 % av smøremiddelet skal brytes ned i naturen i løpet av 30 dager.
Det er i de senere årene blitt utviklet flere typer smørefrie glideplater. Ved bruk av smørefrie glideplater kan man spare betydelige beløp til smøremidler og arbeidstid for å smøre glideplatene. Figur 18 viser smørefrie glideplater som anvendes av Bane NOR. Glideplatene består av støpestål med et belegg av en nikkel/krom-legering som gir lav friksjon. Belegget blir sprøytet i pulverform på platene under svært høyt trykk ved hjelp av en prosess som kalles høyhastighetsprøyting. Overflatebelegget har dessuten svært god motstand mot korrosjon og slitasje.

Figur 19 viser en annen type smørefrie glideplater hvor det er innfelt sirkulære plater av bronze-legering eller kunststoff. Disse platene gir svært lav friksjon, men er mer utsatt for slitasje enn glideplatene med nikkel/krom-belegg.

3.1.6 Tungeruller
For å hjelpe bevegelsen av tungen under omlegging av sporvekselen blir det anvendt tungeruller. Tungerullene løfter tungen noe og reduserer dermed friksjonen over en del av tungens lengde. Figur 20 viser tungerullene som brukes i mange sporveksler i Norge. Konstruksjonen består av kuler som er integrert i glideskoplaten. Ulempen med denne typen tungeruller er at de har en tendens til å grave seg inn i tungens underside. Dessuten er de utsatt for at sand og andre små partikler kan komme ned i kulehusene og forårsake fastkiling av kulene.

I sporveksler med smørefrie glideplater er tungeruller utelatt. Figur 21 viser en ny type tungeruller som for tiden testes på Kongsvingerbanen. Figur 22 viser en tungerullkonstruksjon som vi finner på høyhastighetsveksler i Tyskland. Denne konstruksjonen bidrar også til å sikre at tungen hele tiden holdes i riktig posisjon.


3.1.7 Beskyttelse mot snø og is
Om vinteren må sporveksler beskyttes mot snø og is for å sikre at sporvekselen kan opereres til enhver tid. Det er spesielt tungepartiet som trenger beskyttelse. Dersom det legger seg is eller snø mellom tunge og stokkskinne vil det ikke være mulig å legge over sporvekselen.
Sporveksler beskyttes mot snø og is gjennom to metoder:
- Oppvarming av tunge og stokkskinne
- Tildekking i tungepartiet
Sporvekselvarmesystemer varmer opp tungen og stokkskinnen slik at det ikke bygger seg opp is på tunge og stokkskinne. Systemer for sporvekselvarme vil ikke bli nærmere omtalt her, men er utførlig behandlet i L543, kap. 2 – Sporvekselvarme.
Tildekking i tungepartiet vil hindre snøen i å legge seg slik at sporvekselen ikke kan legges om. Det finnes to typer av tildekking som kan benyttes; rådegravsdeksel og tungepartideksel. Figur 23 viser rådegravsdeksel som beskytter rundt og i svillemellomrommet der driv- og kontrollstenger er plassert. Rådegravsdekselet vil i tillegg beskytte mot snubling i rådegraven og skal derfor bygges inn i alle veksler der det pågår skifting av tog og eller hvor det ferdes personale i sporet.

Tungepartideksler tildekker glideplatene og tungepartiets utside. Tungepartideksler er mest effektive der sporvekslene passeres med hastigheter over 70 km/h da tungepartiet blåses rent av togets fartsvind.
Et relativt nytt konsept for å holde snø og is borte er å montere en «skjerm» av børster på utsiden av tungepartiet. Dette konseptet er utviklet i Sverige og har vist seg å være effektivt spesielt mot snø som driver på tvers av sporvekselen. Børstene bidrar også til at sporvekselvarmen lettere smelter is og snø ved at varmetapet mot omgivelsene blir mindre.

3.2 Kryssparti
Krysspartiet består av skinnekrysset og kjøreskinner med ledeskinner.

3.2.1 Skinnekryss
Vi skiller mellom 5 ulike typer skinnekryss:
- Konstruerte kryss
- Kryss med smidd krysspiss
- Helstøpte kryss av 12–14 % manganstål
- Skinnekryss med bevegelig krysspiss eller vingeskinne
- Sidekryss i kryssveksler
Skinnekrysset består av to vingeskinner og en krysspiss. I skinnekrysset skal toghjulet krysse en skinnestreng. Dette kan bare gjøres ved at det er en «åpning» i skinnestrengen hvor hjulflensen kan passere. Hjulet skal med andre ord passere et føringsløst parti. I skinnekryss med bevegelig krysspiss/vingeskinne lukkes dette partiet ved at enten krysspissen eller vingeskinnen «legges over» slik at vi får en kontinuerlig streng gjennom krysset.
Konstruerte kryss er høvlede/freste normalskinner som er skrudd sammen til et kryss. Denne krysstypen finnes bare i eldre sporveksler.

Krysspissen består av en smidd blokk som er herdet og påsveist kryssbenender ved elektrisk motstandssveising. Gjennomgående bolter holder vingeskinner og krysspiss sammen.


Mangankryss er skinnekryss som er støpt i en hel blokk av 12–14 % manganstål. Her er med andre ord ingen gjennomgående bolter. Etter 1994/95 har alle sporveksler til JBV blitt levert med støpt mangankryss. I helstøpte mangankryss finnes ingen boltforbindelser som kan løsne. En annen fordel med denne krysstypen er den gode motstanden mot slag og slitasje vi oppnår med denne materialtypen.

For å øke komforten og redusere slitasje og støy i skinnekrysset kan krysspissen eller vingeskinnene beveges ved omlegging av sporvekselen. Dermed unngår man et føringsløst parti. Figur 29 viser et skinnekryss med bevegelig krysspiss.

Kryssveksler består av i alt 4 skinnekryss. I begge ender av kryssvekselen finner vi «vanlige» skinnekryss. Midt inne i kryssvekselen finner vi sidekryssene som har en mer spesiell oppbygging. Figur 30 viser sidekryss av manganstål med høye ledeskinner. Sidekryssene er symmetriske med to krysspisser.

3.2.2 Ledeskinner
Gjennom skinnekrysset er det et føringsløst parti. Ledeskinnene skal sikre at hjulet passerer på riktig side av krysspissen. Rillebredde mellom kjøreskinne og ledeskinne skal normalt være 40 mm, mens toppen av ledeskinnen skal være 20 mm over skinnetopp.
Det finnes 3 typer ledeskinner:
- Lavt ledeskinneprofil
- Høyt ledeskinneprofil Fl 1 - 49 (brukes til sidekryss i kryssveksler og sporkryss)
- Ledeskinneprofil 33C1
Lavt ledeskinneprofil finner vi bare i eldre sporveksler. Her ligger toppen av ledeskinnen i flukt med skinnetopp.

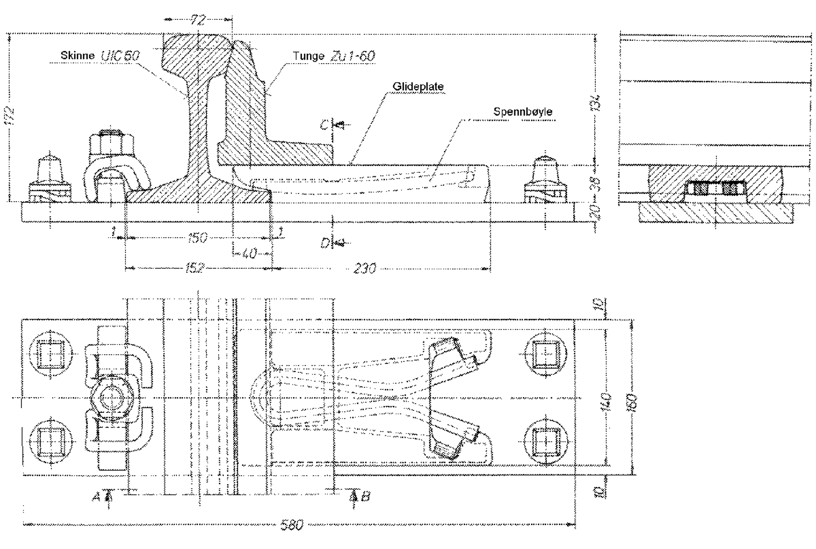
I dag anvendes ledeskinneprofilet 33C1 på alle nye sporveksler i Bane NOR. Selve profilet er skrudd fast til en ledeskinnebrakett. Figur 32 viser ledeskinnen festet til brakett som er sveist til underlagsplatene. Denne konstruksjonen som tidligere ble benyttet har en svakhet i sveisen mellom braketten og underlagsplata som i noen tilfeller har resultert i brudd.

I dag brukes det helstøpte brakettplater. Her er brakett og underlagsplate støpt sammen til et element. På denne måten unngår man å svekkelsen av underlagsplata som sveisen tidligere utgjorde. Figur 33 viser ledeskinner med helstøpte brakettplater av den typen som anvendes i nye sporveksler til Bane NOR.


I kryssveksler benyttes såkalt høyt ledeskinneprofil FL1-49. Dette er den samme konstruksjonen som lavt ledeskinneprofil, men hvor toppen av ledeskinnen ligger 19 mm over skinnetopp. I nyere kryssveksler er ledeskinnene støpt sammen med sidekryssene, se figur 30.

3.3 Sporvekselsviller
Sporvekselsviller kan være av tre eller spennarmert betong. Mens det tidligere var vanlig å benytte tresviller i sporveksler, blir de aller fleste sporveksler i dag levert med betongsviller. Treslag som benyttes til sporvekselsviller er i hovedsak eik. Til sporvekselsviller i betong benyttes betongkvalitet C60. Betongsvillene er dimensjoner etter momentdiagram som vist i figur 35.

Sporvekselsviller har forskjellig lengde avhengig av svillenes plassering i sporvekselen. De fleste av svillene er gjennomgående, dvs. at de går på tvers over hele sporvekselen. Dette er nødvendig for å holde de enkelte konstruksjonselementer sammen slik at sporvidder og ledevidder holdes under kontroll. Bare i bakkant av sporvekselen (bak skinnekrysset) finnes et fåtall korte sporvekselsviller.
Figur 36 viser sporvekselsville i betong for 60E1-veksler. I sporvekselsvillene støpes det inn svilleanker og dybler for feste av fjærer, underlagsplater og glidestolplater. Svilleankerene/dyblene må støpes inn på nøyaktig fastsatt sted på hver enkelt sville. Dette sikres ved at hver sville har et sett med koordinater som angir plasseringen. Hver enkelt sville er nummerert slik at svillene kan legges på riktig plass under montering av vekselen.

3.3.1 Spesialsviller i sporveksler
I tungepartiet finnes det noen spesialsviller for feste av drivmaskiner og transformatorer. Tradisjonelt festes sporvekseldrivene mellom to lange sviller som kalles rådegravsviller (figur 37) Driv- og kontrollstenger blir liggende i svillemellomrommet mellom de to rådegravsvillene. Denne tradisjonelle løsningen innebærer at driv- og kontrollstenger ligger åpent og er sårbare for påkjenninger fra sporjusteringsmaskiner, snøryddingsutstyr og annet utstyr. Det er dessuten vanskelig å justere sporet rundt rådegravsvillene tilfredsstillende.

I de senere årene er det utviklet en såkalt «kassesville» i stål som er hul og rommer både kontroll- og drivstenger. Denne kassesvillen erstatter de to rådegravsvillene og gir full beskyttelse for kontroll- og drivstenger. Figur 38 viser kassesvillen som er tatt i bruk i nye sporveksler ved Bane NOR og Gardermobanen.


En annen spesialsville som er utviklet de senere årene er «trafo-svillen». Dette er en betongsville med en kasse av stål hvor transformatoren for strømforsyning av sporvekselvarmen er plassert. Denne løsningen, som er vist i figur 39 er tatt i bruk ved Gardermobanen.

3.4 Befestigelse i sporveksler
Det brukes i dag generelt samme type befestigelse i sporveksler som i spor på fri linje. Det betyr at nyere sporveksler har fjærende befestigelse med elastiske mellomlegg.
Et problem med befestigelse i sporveksler er faren for overbelastning av fjæren. Sporvekselkomponenter er så tunge at vi risikerer å strekke fjærene over flytegrensen når vi løfter i skinnene under montering eller ved sporjustering. Når flytegrensen overstiges mister vi noe av klemkraften i fjæren. For å sikre mot varige deformasjoner anvendes det derfor kraftigere fjærer av typen Pandrol PR og Pandrol e enn tilsvarende fjærer på fri linje (PR 607 og e 2039). I det nye befestigelsessystemet Pandrol Fastclip blir fjærene sikret mot overbelastning ved at svilleankerene har en bøyle i overkant som hindrer fjæren i å strekke seg for langt (figur 40).

Bane NORs nye sporveksler har Pandrol Fastclip befestigelsessystem. Figur 41 viser dette systemet bakerst i tungepartiet. Vi ser at ikke bare skinnene, men også glidestolplater/underlagsplater er festet med fjærer. Under glidestolplatene ligger det 10 mm elastiske gummimellomlegg. Dette sikrer tilnærmet samme elastiske forhold for tungene (som ligger direkte på glideplater av stål) som for de øvrige skinner i sporvekselen.

I sporveksler er det to steder hvor vi ikke får plass til å feste skinnene med «vanlige» befestigelsesfjærer:
- Ved glidestolplater
- Ved ledeskinnebraketter
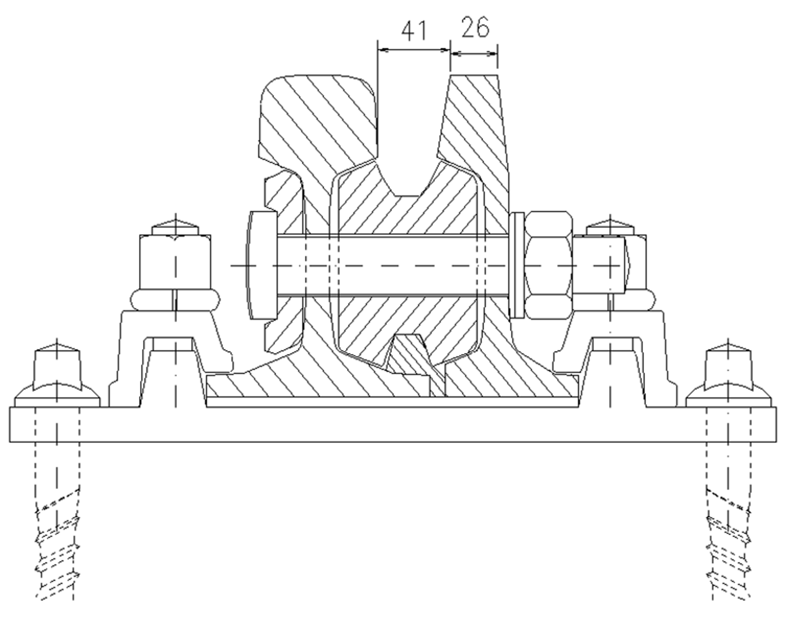
I disse områdene må vi bruke spesialfjærer for å feste stokkskinne og kjøreskinnen på den siden som vender inn mot tungen/ledeskinnen. Figur 42 viser fjærbøyle i tysk 60E1-veksel for feste av stokkskinne i tungepartiet. Dette er den samme løsningen som brukes i sporveksler i Norge. Figur 43 viser samme type bøyle for feste av kjøreskinnen i krysspartiet.


4 Materialkvaliteter i sporveksler
Sporvekselkomponenter er vesentlig mer utsatt for slitasje og utmatting enn skinner i sporet forøvrig. Dette stiller spesielle krav til skinnestålets mekaniske egenskaper i disse komponenter. Spesielt gjelder dette i krysspartiet. I tillegg stilles det krav til at stålkvalitetene som skal anvendes har en kjemisk sammensetning som gjør det mulig å reparere sporvekselkomponentene med påleggsveising.
4.1 Stålkvaliteter i skinnekryss
Foruten stålkvaliteter som er nevnt i L533, kap. 2, skinner, er følgende stålkvaliteter aktuelle i skinnekryss:
50 CrV 4
Krom-vanadium seigherdestål som er martensittisk herdet til strekkfasthet = 1200–1400 N/mm2. Benyttes i krysspisser i sporveksler levert fra Voest Alpine på 70, og 80-tallet
W-720
Høylegert stål som gjennom en utfellingsherding (maraging) oppnår strekkfasthet 1700–1800 N/mm2. Materialet blir pålagt en krysspissblokk av st-52 stålkvalitet i 20–25 mm tykkelse. Disse kryssene går under betegnelsen "«Vario-1800N». Det kan også leveres kryss med W-720 pålagt deler av vingeskinnene. Det finnes noen få skinnekryss av denne typen i Norge i sporveksler levert av Voest Alpine fra 1990–1994.

Manganstål
12–14 % manganstål (hadfield) er en austenittisk ståltype som blir brukt i helstøpte skinnekryss og krysspissblokker. Stålet har følgende kjemiske analyse:
Mn: 12–14 % C: 0,9–1,3 % Si: 0,65 % P: max 0,04 % S: max 0,03 %
Austenittiske stål er en fellesbetegnelse for ståltyper med en kjemisk sammensetning som gjør at de har en austenittisk struktur ved romtemperatur.
Det som gjør disse materialene spesielt godt egnet til bruk i sterkt belastede sporvekselkomponenter er deres evne til deformasjonsherding. Manganstål er i utgangspunktet mykt, (ca 200HB). Når stålet blir utsatt for trafikkbelastning overstiges stålets flytegrense i et overflatesjikt, dvs. at vi får en plastisk deformasjon. Austenittiske ståltyper har den egenskapen at når de blir utsatt for en plastisk deformasjon vil stålet få en betydelig hardhetsøkning. Manganstål oppnår en hardhet på 450–500 HB etter trafikkbelastning.
På skinnekryss i helstøpt manganstål oppnår man dermed en hard, slitesterk overflate på et ellers seigt material.

Manganstål kan ikke skjøtsveises med aluminiotermisk sveisemetode til vanlig skinnestål. Manganstålkryss kommer derfor i dag med kryssbenender i karbonstål som er sveist til manganstålet ved hjelp av elektrisk motstandssveising og et mellomstykke i krom/nikkel-stål. Figur 46 viser en slik spesiell sveis.
Nye skinnekryss i manganstål må slipes for å utjevne/fjerne deformasjoner som oppstår under kaldherding. Sliping iverksettes når krysset har blitt utsatt for trafikkbelastning mellom 600 000 og 800 000 bruttotonn.

5 Vedlikehold av sporveksler
De etterfølgende regler omfatter et fast periodisk tilsyns- og vedlikeholdsprogram som skal sikre høy standard. Siktemålet er å oppnå sporveksler med gode gjennomkjøringsegenskaper og lang levetid. For å sikre god vedlikeholdsstandard er det nødvendig at:
- sporveksel og sporkryss alltid er godt pakket
- korrekt geometrisk beliggenhet er sikret
- all befestigelse og forbindelsesdeler er korrekt montert og tilspent
- nødvendige kontrollmålinger av sporvekselgeometrien blir foretatt
5.1 Kvalitetsklasser
Sporveksler deles inn i kvalitetsklasser som er avhengig av strekningshastigheten (sth) gjennom sporvekselens hovedspor. Tabell 2 viser kvalitetsklassene med tilhørende hastighetsintervall.
Tabell 2: kvalitetsklasser
| Kvalitetsklasse | Hastighet (km/h) |
|---|---|
| K0 | 145– |
| K1 | 125–140 |
| K2 | 105–120 |
| K3 | 75–100 |
| K4 | 45–70 |
| K5 | –40 |
5.2 Kontroll av sporveksler
Sporveksler skal kontrolleres iht. generiske arbeidsrutiner.


5.3 Utbedring av skader/feil i sporveksler
5.3.1 Inngrepsgrenser og tidsfrister
JD 532 angir ulike inngrepsgrenser avhengig av kvalitesklasse. Det skilles mellom «umiddelbar grense» og vedlikeholdsgrenser. Tabellen under viser et eksempel på grenseverdier i sporveksler.
Ved feil som overstiger umiddelbar grensene skal hastigheten umiddelbart nedsettes til en kvalitetsklasse som gjør at feilen ikke overstiger umiddelbar grensen. Ved feil som overskrider umiddelbar grensen i kvalitetsklasse K5 skal hastigheten settes til maks. 20
Feil som overstiger akuttgrensene skal utbedres innen 14 dager etter at kontrollrapport foreligger. Inntil feil er utbedret skal hastigheten nedsettes med min. en hastighetsklasse.
Feil som overstiger vedlikeholdsgrensene skal utbedres før neste kontroll.
Tabell 3: Grenseverdier for sporvidde i enkle sporveksler
| Kvalitetsklasse | Normalmål (mm) | Umiddelbar grense (mm) | Vedlikeholdsgrense (mm) |
|---|---|---|---|
| K0 | 1435 | +7 / –3 | +4 / –3 |
| K1, K2, K3 | 1435 | +15 / –3 | +8 / –3 |
| K4 | 1435 | +15 / –3 | +12 / –3 |
| K5 | 1435 | +20 / –3 | +15 / –3 |
5.4 Forebyggende vedlikehold
Levetiden til sporveksler og sporvekselkomponenter kan forlenges vesentlig ved hjelp av forebyggende vedlikehold. Aktuelle tiltak kan være:
- Sliping av utvalset materiale (grader, nebb)
- Påleggsveising av nedslitt materiale
- Sliping med hensyn på rifler og bølger
- Ballastrensing/fornying
- Rengjøring
- Smøring
5.4.1 Påleggsveising
Spesielt skinnekrysset er utsatt for stor slitasje. Denne slitasjen fører gjerne til store slagpåkjenninger på skinnekrysset fordi høydenivået mellom krysspiss og vingeskinne ikke lenger er riktig. De store slagpåkjenningene vil kunne føre til utmatting, avskallinger og sprekkdannelser på skinnekrysset som ytterligere øker slagene. Slagene forplanter seg og påfører sviller og ballast skader, noe som igjen øker de dynamiske påkjenningene på hele konstruksjonen. Det er med andre ord lett for å komme inn i en «ond» sirkel dersom ikke geometrien i skinnekrysset holdes på et høyt kvalitetsnivå.
Når det oppstår slitasje bør man derfor erstatte materialet som er slitt vekk. Dette kan gjøres ved å sveise på nytt materiale. Påleggsveising bør utføres før skaden har blitt for stor, slik at man unngår dyre og tidkrevende reparasjoner.
Litteraturhenvisninger
- Bane NOR – Overbygning – prosjektering – Teknisk regelverk JD 530 1999.
- Bane NOR – Overbygning – vedlikehold – Teknisk regelverk JD 532 1998.
- Entwicklung einer innere Backenschienen-Verspannung für Weichen der Deutschen Bundesbahn – Armin Heim – ETR – 1975.
- Rautatievaihteet (sporveksler) – Markku Nummelin – 1994
- Sporskiftekonstruksjoner – Søren Ahler, DSB – 1992.